该幼儿园项目位于东京郊区的鹿岛田,该地区以吸引众多有孩子的家庭而闻名,毗邻工业区,周围是住宅楼。场地位于一条繁忙的道路和一条人行道之间,人行道上绿树成荫,深受当地居民喜爱。周围还有不同的公共设施,如消防局、自来水局和住宅区。这座两层的木质建筑建在原配水站的旧址上,避开了蓄水池的圆形地基遗迹。在邻近的绿化小道上,有大片的落叶树和长椅,人们可以看到儿童在操场上玩耍,在露台上开展活动,以及在接送孩子的时间里家长和孩子之间的互动;在幼儿园里,人们可以看到散步的老人和其他幼儿园的孩子在散步。幼儿园致力于既能继承过去历史,又能与当地社区共同发展。
乌干达的标准材料尺寸有限,通过在乌干达开展的几个项目的经验,我们认识到,我们根据乌干达标准得出的木结构的具体尺寸(3 米、4.5 米和 5 米)在幼儿园建筑中也很有效。在与幼儿长时间相处后,我们发现,由 8 个塔塔米(hachijyo-ma)组合而成的特定尺寸/区域非常符合幼儿的体型和贴近地面的运动。每个托儿所房间都由围绕中央柱子的四个“hachijyo-ma”组成,相互之间的距离为 3,640 毫米(由两个榻榻米产生的长度;futa-ma),形成了一个风车平面。
这个由futa-mas组成的温和空间序列给人一种重要的维度感,与儿童保育领域的感官体验产生共鸣。
此外,四间托儿所还共用一个被称为“Junk-Box”的房间。这个空间继承了搬迁前公立幼儿园教材仓库的精髓。在这个空间里,一些细小的物品被堆积起来,如便于从储藏区内外取出文具和图画书的装置,以及幼儿看得见但拿不到的高度。此外,该空间还包括厕所等其他服务设施,并将作为连接两个幼儿园房间的通道。
整个建筑由两座风车式单坡屋顶的建筑组成,两座建筑的中心相连,底层为入口,连接两座建筑的一层为图画书阅读空间。
这种结构由两座大小相同的建筑组成,通过一个狭窄的部分连接起来。每栋建筑结构独立,采用相同的结构机制。通过在“垃圾箱”(作为储藏空间或核心服务空间)周围有策略地设置承重墙,创造了一个可以体验室外与室内以及花园、小径和托儿所之间联系的空间。我们没有用不可移动的墙壁来限制孩子们的活动,而是利用原木和横梁等结构元素,通过框架的存在来轻轻暗示活动和地点。
项目图纸
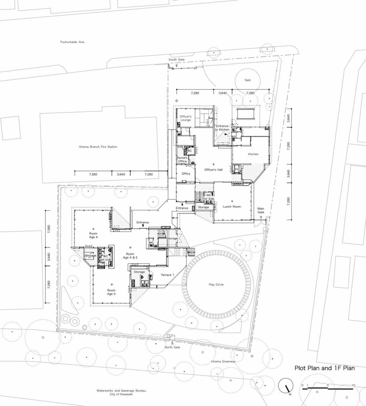
△一层平面图
△二层平面图
△平面图细节图
项目信息
建筑师: TERRAIN architects
面积: 1219 m²
项目年份: 2022
摄影师:Yuichi Higurashi
主创建筑师: Ikko kobayashi, Fumi Kashimura
结构设计师: 坂田涼太郎构造设计事务所
设备设计: Architectural Energy Research Institute
景观设计师: HUMUS
承包商: Satohide Corporation
地点: 日本,Kawasaki

BIM建筑网






















