小时候的第一堂幼儿园课是在运动场玩儿丢手绢游戏,小朋友围成一个不方不圆的大圈紧张中你追我赶的,周围树木随风飘动蝴蝶在花丛中飞舞,这就是我记忆中的幼儿园。 — 元秀万
无锡市经开区以美丽的尚贤河湿地公园展开。开放式湿地公园将新城的中心与太湖联系起来,半圆形的尚贤湖背靠市民中心及无锡市政府。尚贤河两岸为生态休闲区,有背景林和开放的草坪,露天音乐台,生态亲水木栈道和休闲小广场,新修复的巡塘古镇镶嵌河的中央。
▲东入口看向主入口 © DONG建筑影像
▲二层空间 © DONG建筑影像
幼儿园基地就在这个美丽的尚贤河湿地的东侧,西临永信路,北面是城市绿地,南面清晏路与尚贤河湿地接壤是经开区城市主要道路。
▲内庭院活动中的小朋友 © DONG建筑影像
▲沿主要道路外立面 © DONG建筑影像
大 Big
幼儿园占地面积为20622平方米,建筑面积为26109平方米,规划为30个班级的幼儿园。什么样的动线和布局能够更好的满足超大规模幼儿园的采光、通风、盲区及可控的观察范围,同时能够更好的跟尚显湖湿地联系起来,“回”字形布局回应了这些问题。
▲清晨鸟瞰 © DONG建筑影像
▲鸟瞰局部 © DONG建筑影像
一环两区四片的“回”字形的合院式规划布局将教学、行政、办公、后勤食堂、多功能教室和活动空间有效地组织在环形动线四周,超大的围合内院有了足够的想象和开放空间。相互对望的环形动线不仅给老师的管理带来了方便和便利,大尺度大规模空间带来的不易被观察到的隐秘空间在这里也得到了解决。
▲建筑入口处近景 © DONG建筑影像
▲二层走廊局部 © DONG建筑影像
▲廊道对望 © DONG建筑影像
“回”字动线串联整个功能带并围合出一个童心圆,小朋友在这个自由赋有生命动感的平台上玩耍、观察、发现并与自然共生。
▲沿一层环廊运动中的小朋友 © DONG建筑影像
▲在庭院骑行中的小朋友 © DONG建筑影像
中 Medium
波动的曲线平台把相对规整的方形空间赋予了生命力,让无尽的大、变得中庸且有了趣味。这里有摇摆不定的东西和南北两个轴线,把超级大的围合布局划分了模糊的四个中等尺度和区域。内向和向外延伸的楼层平台,将内院向城市和外界延伸过渡。光滑具有张力的“回”形动线唤起小朋友奔跑的欲望,四处观望一无遮拦的视觉场景也激发了没什么玩耍动力的孩子。脐带一样盘旋而下的坡道把小朋友从二楼的平台带到了更自由的中心庭院。
▲随盘旋坡道而上下奔跑的小朋友 © DONG建筑影像
▲盘旋坡道与中庭 © DONG建筑影像
小 Small
幼儿园的空间尺度非常重要,大尺度的“回”字形建筑里也充分考虑到了小孩子的空间尺度。尽可能压低的层高增强了水平向的空间张力。靠近上下垂直交通处设置了开放的木屋、亭台、运动等空间,空间尺度的变化给小朋友积极向上的精神。
▲走廊公共活动区 © DONG建筑影像
▲滑索运动中的小朋友 © DONG建筑影像
▲运动中的小朋友 © DONG建筑影像
▲盘旋坡道局部 © DONG建筑影像
上 Up
主入口上方三层的开放空间设置了具有穹顶的旋转楼梯,为以后屋顶开发预留了充分的可能性。穹顶的开口方向正是太阳升起的方向,远远望去犹如太空飞船落在屋顶上,这似乎让小朋友有了与太空联系的遐想和欲望。
▲去往屋顶的旋转楼梯 © DONG建筑影像
▲主入口上方的公共空间与穹顶 © DONG建筑影像
中 middle
南北向的中心位置设置了教室这也有利于教室采光,东西向的中心位置设置了垂直交通和开放空间,南北教室的学生在这里有了相遇交集的场所。悬挑的平台不仅起到了遮阳及教室更好的通风做用,暑热、风雨天小朋友也可以在平台上游戏活动。外廊端口部设计了可以种植花草树木的凹槽,可以让户外绿植景观过渡延申到室内。
▲二层廊道 © DONG建筑影像
▲二层开放活动区 © DONG建筑影像
▲二层外廊平台 © DONG建筑影像
▲沿河外立面局部 © DONG建筑影像
下 down
为了能够分散家长接送,地下设置了停车和接送系统。入口处大厅垂直交通可直达地下接送等候空间,也可经过天井的户外楼梯到达地面的门厅或入口。这种上下分流的接送系统大大缓解了交叉接送的问题也为家长带来了便利,特别是风雨季节。
▲东入口立面 © DONG建筑影像
▲地下接送接待大厅 © DONG建筑影像
▲地下接送下沉庭院 © DONG建筑影像
结尾 Ending
幼儿园动线以“回”字形循环闭合,不存在终点和起点。孩子们喜欢虎头虎脑地奔跑在没有尽头的环形空间里。在这里他们像小猫追逐自己的尾巴一样玩耍,对于小孩子来说一圈一圈的奔跑是与生俱来的动力,在奔跑中成长发现。孩子们会依照某些特定的模式移动,如果他们所在的环境能够适应这些模式不需要任何提示,孩子们便会自发的开始探索。家长和老师会慢慢发现,孩子们喜欢没有终点的环形线路。
▲夜景 © DONG建筑影像
华星幼儿园的小朋友们在看似简单的大、中、小、上、中、下的逻辑里,就像一个人从小慢慢长大。在无限放大收缩、处在呼吸状态的“回”字形建筑里,似乎酝酿着小朋友的未来之梦,犹如夜空中闪耀的星星。
项目图纸
▲总平面图 © 元秀万建筑事务所
▲地下一层平面图 © 元秀万建筑事务所
▲首层平面图 © 元秀万建筑事务所
▲二层平面图 © 元秀万建筑事务所
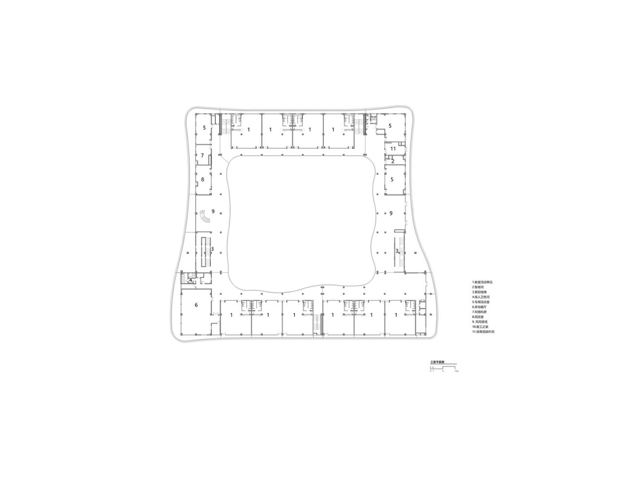
▲三层平面图 © 元秀万建筑事务所
▲屋顶层平面 © 元秀万建筑事务所
▲立面图 © 元秀万建筑事务所
▲剖面图 © 元秀万建筑事务所
▲龙凤柱节点图 © 元秀万建筑事务所
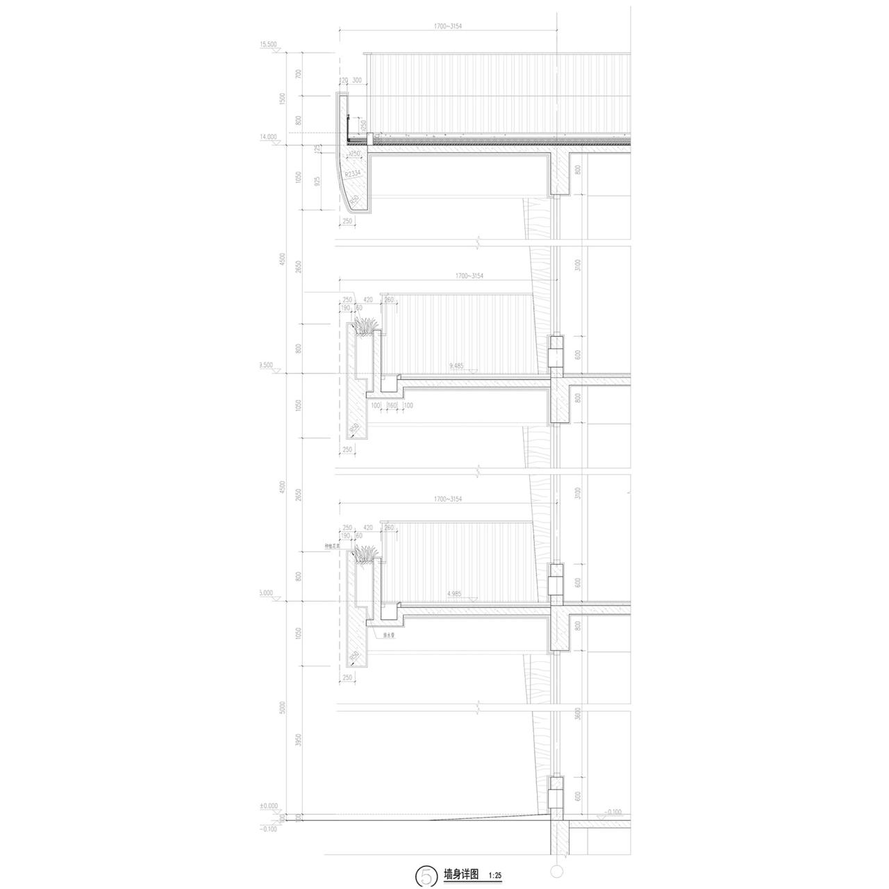
▲墙身大样 © 元秀万建筑事务所
项目信息
项目名称:无锡华星幼儿园
项目类型 :建筑/室内
项目地点:中国江苏省无锡市经开区华庄街道清晏路82号
建成状态:建成
设计时间(起迄年月):2021/01
建设时间(起迄年月):2024/08
用地面积(平方米):20622.7㎡
建筑面积(平方米):26109㎡
设计方:元秀万建筑事务所
主创建筑师:元秀万
方案设计团队:元秀万,邹赫,刘振宇,吴永红,金雪,余函,申策胜,姜金池 ,尹成旭
方案设计范围:建筑设计、室内设计
合作设计单位:无锡市建筑设计研究院有限责任公司
施工单位:中建科工集团有限公司
结构类型:钢筋混凝土框架
材料:混凝土,玻璃,铝板
委托方:江苏无锡经济开发区发展中心
摄影师: DONG建筑影像


BIM建筑网
















































