AEME 是一座位于危地马拉城(Guatemala City)的建筑。其一楼呈开放的平面布局,专门用于商业用途和餐厅,二楼结合了商业与办公,三楼则专门用作办公室。一楼通过通高的入口与街道相连,旨在强调向城市友好开放,也让底层成为公共空间的延伸。
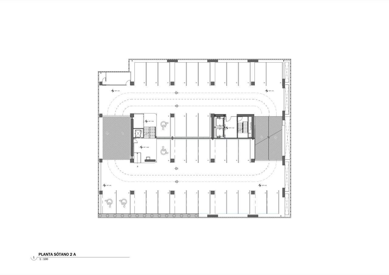
五楼设有供租户使用的露台,地下还有四层停车场。其功能围绕着为整个建筑提供自然采光、并设有两部观光电梯的中央中庭展开。电梯对面是由金属与白色大理石组合而成的雕塑般楼梯间。
该项目邀请了Luis González Palma、Andrea Monroy Palacios、Angel Poyón、Alejandro Paz、Gabriel Rodríguez 和 Darío Escobar这几位当代视觉艺术家创作与建筑结构有直接关系的作品。
该建筑试图反映时间流逝的基本概念。其几何形状的严谨性与通过竖框元素应用的持续运动相结合,创造了在建筑不同层面上的循环渐变。尽管时间是严谨和硬性的,但建筑师试图寻求以一种基于圆形和精确几何形状的简单方式来打破立面外形。
建筑的颜色是一种近乎黑色的灰,旨在寻求一种中性和持久的颜色,从而突出赋予立面、木材与光线生机的软柔元素。该大楼还试图强调通透度,并利用自然光作为赋予建筑空间生命和活跃性的元素。
项目图纸
△负四层平面图
△负三层平面图
△负二层平面图
△负一层平面图
△一层平面图
△二层平面图
△三层平面图
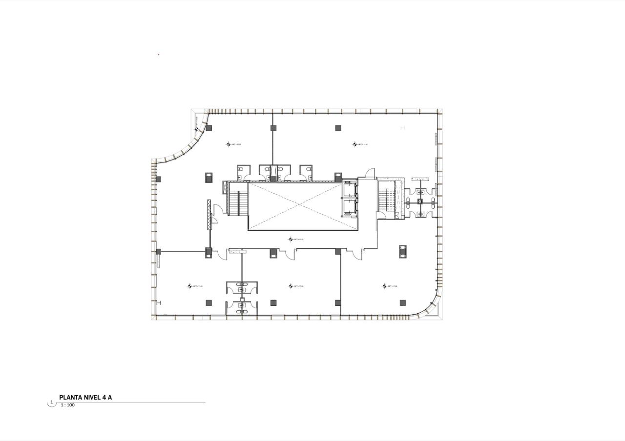
△四层平面图
△五层平面图
△剖面图
△剖面图
△立面图
△立面图
项目信息
建筑师:Paz Arquitectura
面积 :10702m²
项目年份 :2021
摄影师 :Cristobal Palma / Estudio Palma
厂家 : Hunter Douglas,Aluver,Coverlam,Neocrete,Tecto
主创建筑师 :Alejandro Paz
建筑设计 :Paz Arquitectura
结构设计 :Sismoconsult – Dr. Hector Monzón Despang
开发及项目管理 :URBOP
电气设计 :Instelectra
特殊装置的设计及协调 :CYGNUM
液压设计 :Hidromaq/Plotecnia
照明设计 :LUCE – MA Lighting Design Arq. Eli Porres
景观设计 :ENVERDECE – Giulliana Gobbato
地点:瓜地马拉,Ciudad de Guatemala


BIM建筑网













































