北京师范大学珠海校区,是北师大建设“综合性、研究型、教师教育领先的中国特色世界一流大学”和“一体两翼”办学格局的重要组成部分。自 2019 年以来,在分校转型升级和低碳校园建设的大背景下,校方开始针对校园内既有建筑进行改造提升,元白楼的成功改造正是这系列改造工程的一部分。
元白楼是北京师范大学珠海校区内的既有建筑。随着校区的发展,元白楼在外部形象、内部功能等方面均无法满足使用需求。改造设计中,通过新增屋顶连廊、跑道等方式,形成一气呵成、贯穿 15 个独立盒子的立体游走路径,将原本无趣的屋顶空间转化为感知自然的交往场所。此外,通过对原有建筑空间的梳理与再创造,营造多样交往空间,让建筑本身成为匹配未来设计学院教育模式的“行为激发器”,人与自然的联系、人与人的交往成为设计教育的重点。
北京师范大学珠海校区利用毗邻港澳的独特优势和创新氛围,旨在打造卓越教师尤其是国家急需学科师资培养的南方高地,服务港澳人心回归和“一带一路”倡议的人才培养基地,教育高精尖研究中心以及新兴学科、交叉学科培育基地。
北京师范大学珠海校区被誉为亚洲最美山谷大学。校区位于凤凰山北麓,距离海边 6 公里。元白楼是校区内的既有建筑,位于校园核心湖畔景观带,由 15 个独立方形“盒子”组成,建筑共计五层。
自2004年左右投入使用之后,元白楼一直作为设计类院系的教学楼。随时间推移,该建筑外立面剥落涂料褪色,钢梯老化严重,建筑内院落杂草丛生,地砖破碎老化严重,大量室内功能闲置。经过系统性改造工程,元白楼已成为校园核心景观带上最美丽的一环,大量的室外空间和灰空间受到校内师生喜爱,新整合形成的展厅、中庭等空间融入了未来设计学院的日常教学工作。改造设计中,我们聚焦于两个关键问题:(1)在规划、造价和工期的三重限制下,如何最大化利用原有建筑,与校园环境融合并激发场所活力?(2)在互联网和智能手机如此发达的今天,如何创造交往空间,让人放下手机面对面去交流?
一、工期和造价限定下的外立面改造策略1.“皮外皮”模式打造轻扰动的外部形象提升策略在不破坏原有墙面和屋面材料的基础上,通过干挂砖幕墙和GRC幕墙,为建筑穿上一层红白交叠的“新衣”,中央白色盒子顶部局部增设U玻,成为建筑群落的中心和制高点,使得混乱的元白楼群落成为一个具有向心感的整体。外围盒子为红砖幕墙,点缀白色格栅,呼应校园周边的红砖建筑。2. 强化和重复形式母题,丰富文化基因中央盒子周围有一个二层平台,平台下无自然采光,入口处有一个方形盒子暗示入口。拆除原有的方形盒子,将平台向外延伸形成一个三角形入口雨棚,造型更具整体感,成为建筑主入口。平台上开三角形天窗,为入口灰空间提供采光。景观设计中,同样采用三角形母题,为路过的校园师生提升丰富的空间。
二、匹配新教育模式的“行为激发器”
德国哲学家雅斯贝尔斯说过:“教育的本质是一棵树摇动另一棵树,一朵云推动另一朵云,一个灵魂召唤另一个灵魂。” 哈佛大学校长德鲁•福斯特(Drew Faust)认为,大学中人与人的互动所带来的观点碰撞与交流,是构成大学教育不可或缺的要素。如何塑造富有活力的交流场所,营造一种非正式的室外学习空间,将日常点滴融入学生可持续的学习生活中,是我们本次项目思考的重点。我们认为,一座建筑最迷人的部分也并不是建筑本身,而是由建筑触发的无限可能。
1.“盒中盒”:中央盒子的空间再生与生态改造,打造多功能使用空间中央盒子原为露天空间,内部杂草丛生。改造后,顶部加设玻璃顶盖,将“中央盒子”变为有顶灰空间,通过楼梯的织补将层层楼梯贯穿上下,并在首层加设大台阶,整个楼梯系统既是交通空间也是活动空间。如今,全校师生都可在此处举办活动,诸如歌唱会、时装秀、毕业展等,激发无限可能。2.“园中院”:一方一圆,织补公共游园路径,创造服务整个校园的跨学科交流场所两个院落原先为消极的负空间,景观设计将其整理为“一方一圆”两个院落。方院围绕保留的凤凰木形成红砖座椅;圆院围绕原有下沉地势设置圆形舞台,形成核心空间。织补原有路径,形成多方向入口路径,将师生引入院落,创造整个校园的活力场所。如今,方院和圆院是学校举办各种创意市集、文化演出的场所。3.“看与被看”,丰富的室外连廊和楼梯创造大量的偶遇空间通过室外连廊和楼梯的再梳理,提供交通连接,创造交流机会。丰富的光影变化也使得这些空间成为学生打卡地,以及艺术创作的灵感来源。4. 建筑内部功能整合为适应新的教学模式需求,建筑室内也进行了空间的整合和再设计。位于首层的两个大阶梯教室,被整合为一个完整的展厅空间,内部植入大台阶,形成多功能展厅空问。
三、以连贯路径串联建筑整体1. 笔墨游龙,一气呵成、见山见水的立体路径元白楼的“元白”取自北师大教授,中国著名书法家启功先生的字。元白楼盒子之间原有部分室外连廊和楼梯,但无法贯穿所有盒子,路径断裂,气韵不同。改造过程中, 效法启功书法神韵,通过新增连廊、跑道等方式,将原本的“断笔”连贯,形成一气呵成,联系屋顶和地面的立体游走路径。元白楼位置背山面水,“笔墨游龙”与场地气韵相融,提供不同视角感受自然的机会。屋顶连廊被穿孔铝板包裹,配合夜景照明设计,宛如游龙。将屋顶原有设备和井道等以格栅遮挡,局部设置草坪或木质的放大平台,形成场所空间,触发不同使用行为。2. 新旧交织,融入校园穿行路径,打造校园艺术小路元白楼主体标高高于校园道路,在东西两侧有两条石板小路进入建筑,可达性不佳。改造中以红砖地面与原有石板路交织,拓宽步行路径,并设置放大平台和休息座椅,配合灯光设计,形成欢迎路人进入的空间,嵌入校园整体穿行路径。这些小径也成为了艺术学院学生们进行户外评图和作品展示的空间。
四、面向双碳目标的校园建筑改造策略元白楼是北师珠校园系列绿色改造工程的重要一环,在设计和使用全过程中,以双碳目标为导向,结合建筑现状和成本工期等客观因素,因地制宜地采用合理策略,从能源、建造、运营、教育四个角度降低碳排放,打造绿色校园建筑典范。从能源角度,采用高效能空调和可开启窗扇,过渡季节自然通风,降低建筑使用能耗。从建造角度,建筑中央盒子底部新增洞口,在主风向路径上增强通风,形成怡人微气候;顶部新增采光顶,形成可使用的室内空间,并将采光顶抬高实现侧面通风,形成拔风效应。立面结合格栅、窗套等不同遮阳形式,针对不同使用功能和朝向,采用不同进深和方向的窗套进行包裹,形成丰富的立面表情,同时减少室内直射阳光,降低夏季制冷能耗。内院和周边保留了大量现状树木,维持原有植被的固碳能力。这些手段无需过于复杂的技术设备和成本投入,兼顾绿色节能、功能使用和外部形象等多方面需求。从运营角度,更换高效节水型卫生洁具,绿化项目均采用节水灌溉方式,避免植物“过涝”。室内外的自习和交流空间充分利用自然光、自然通风,降低使用能耗。从教育角度,改造后的元白楼对全校师生开放,建筑本身成为设计教育教学的对象,加深师生对低碳发展发展理念的认识。伴随着一批批毕业生离开校园,前往全国各地的教育岗位,低碳绿色的理念也得到了更广泛的传播。
五、设计为未来美好生活,照亮乡村美育之路元白楼改造后作为北京师范大学未来设计学院的教学楼。未来设计学院以北京师范大学现有优势学科为基础,根据学校“十四五”发展规划及建设的总体框架目标,根植于艺术、科技、教育的交叉领域,推进以“设计为未来美好生活”为导向的设计学学科建设。未来设计学院积极响应学校关于学习贯彻落实习近平总书记“四有”好老师重要讲话精神和给北师大“优师计划”师范生重要回信精神,通过不同类型的教育项目带领师生投身乡村教育的伟大事业,为国家培养具有创新精神和社会责任感的教育家。作为北师大“未来设计种子基金”项目之一,“困境儿童艺术教育系列”项目聚焦在教育资源稀缺的乡村美育上,让专业人员带队为乡村困境儿童在课内外建立能够将他们的切身生活与文化传统、新的艺术认知结合起来的试点教育,以填补美育在乡村中的空白,培养孩子们的观察力、感知力和共情力。同时,也与艺术家、教育工作者一同探索困境儿童美育之路。
项目图纸
△总平面图
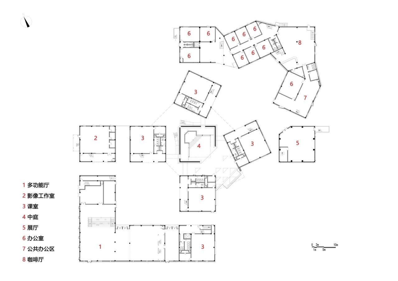
△一层平面图
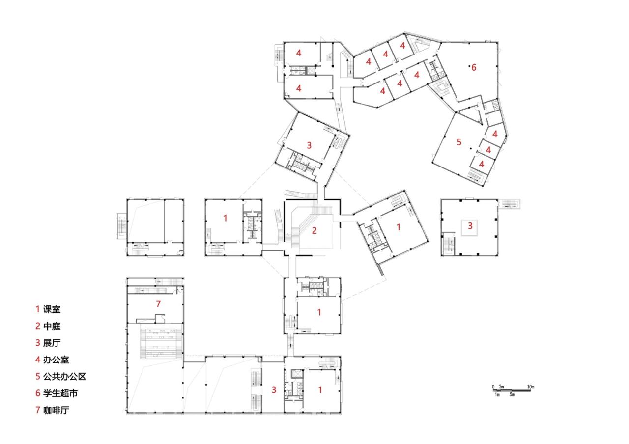
△二层平面图
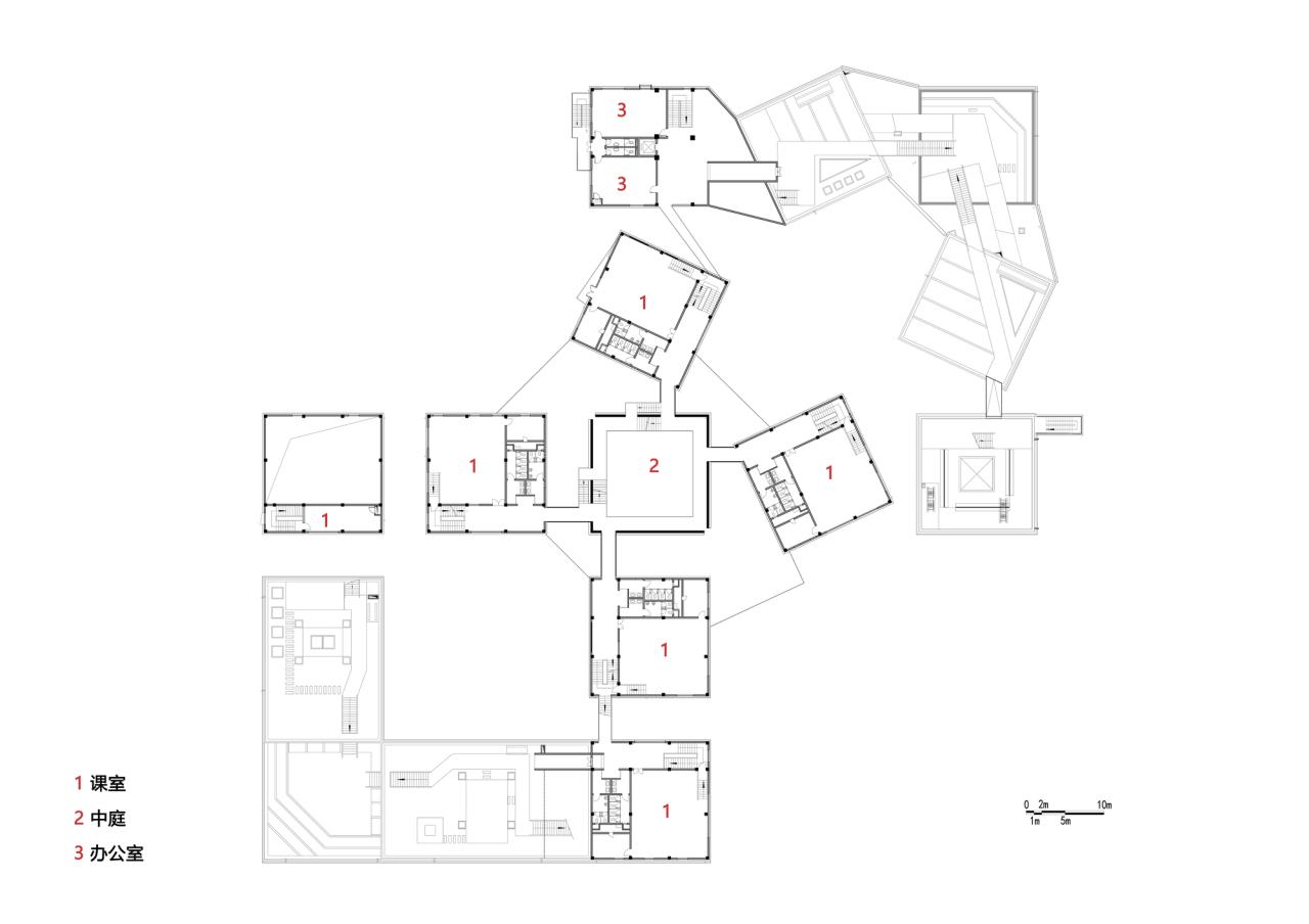
△三层平面图
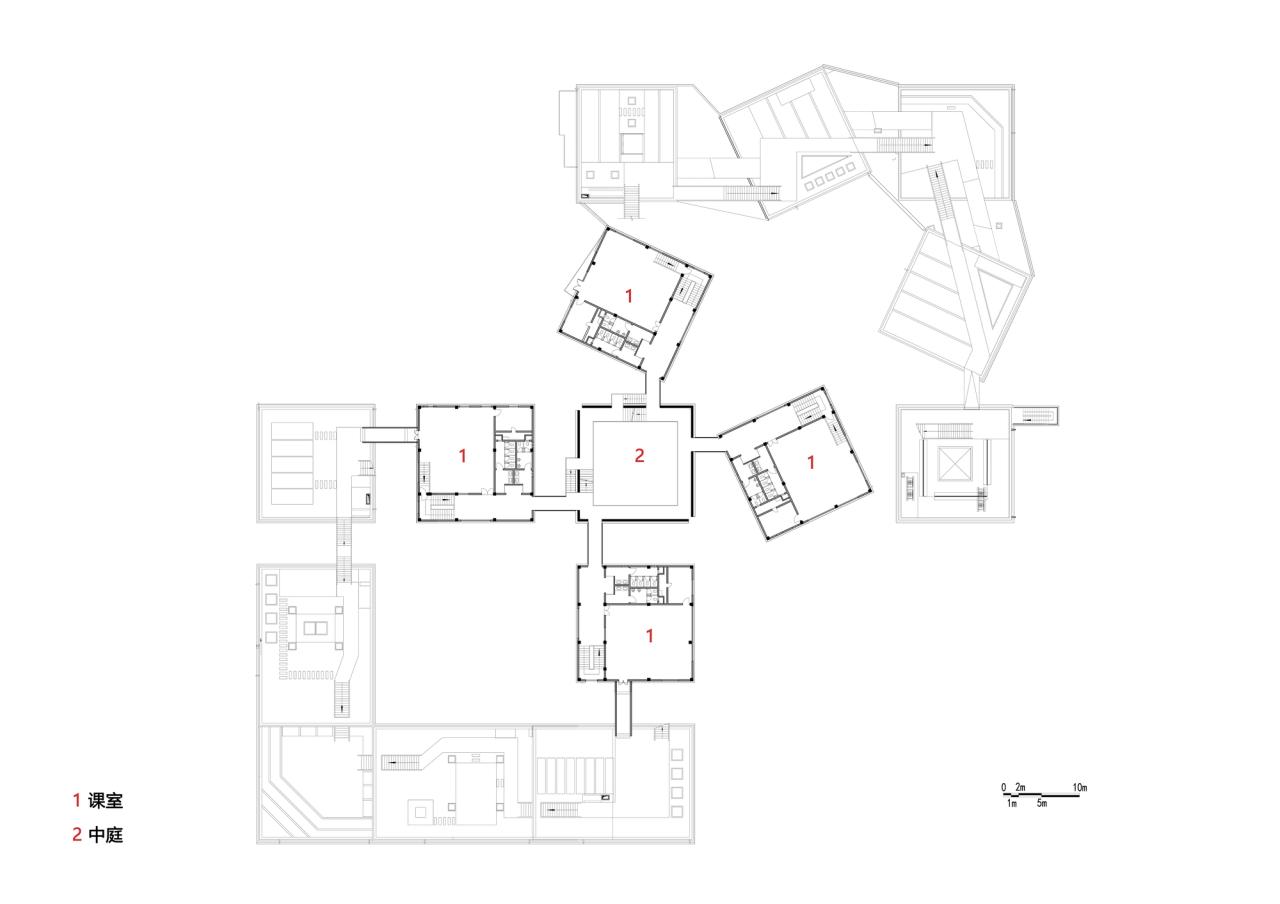
△四层平面图
△五层平面图
△屋顶平面图
△分析图
项目信息
建筑师:清华大学建筑设计研究院
面积:13762m²
项目年份:2021
摄影师:吴清山,战长恒,THAD
设计团队:清华大学建筑设计研究院有限公司
项目负责人:张维 赵婧贤
建筑设计:张维 赵婧贤 黄海阳 王越 李向苡 张啸乾 蔡明成 章宇贲 李若星 李诗琪 雷思雨
结构设计:李青翔 李滨飞 祝乐琪 郭风建
给排水专业:徐青 刘福利 刘玖玲
暖通专业:韩佳宝 贾昭凯 于丽华
强电专业:王磊 贾启超 韩晓燕 徐慧影 潘敏 崔晓刚
场地规划专项:梁思思
规划咨询:黄健翔 龙瀛
绿色建筑:杨涤非 陈怡琼 刘加根
夜景照明:张昕 韩晓伟 赵晓波 王丹
施工方:天津天一建设集团有限公司
委托方:北京师范大学珠海校区
地点:珠海

BIM建筑网






























