自国家十四五规划明确提出我国城市发展由“增量发展”向“存量更新”方向转变以来,各地老旧建筑更新改造方兴日盛。在此背景下,靠近设计事务所进行了一次大胆探索,我们希望存量建筑更新不只是停留于常规的外观改造与内部装修,而是思考如何让每一座老旧建筑在自身获得新生的同时,都能够为城市日常生活带来更多的贡献,主动与城市的边界发生关系,引发可能的化学反应。本次设计旨在探索建筑与城市之间的另一种可能性,并希望能为当下城市更新以及城市公共空间的发掘利用提供一种新的视角和思路。
背景项目位于北京市大兴区的老城区内,现状派出所呈“F”形,撑满了狭小的用地。新业主是著名的财经科技新媒体平台钛媒体集团,2018年初委托靠近设计事务所将这座派出所改造为其北京总部办公楼。
“折叠”出来的公园设计将传统平面公园进行多次“折叠”后,转变成一片极薄的“垂直公园”,以最小的“触地”方式贴合于“F”形建筑的边界空白处,替代原有围墙成为新的场地边界。传统公园中的游步道也同样经过折叠后置入场地边界,由平面路径转变成了更富趣味的立体缠绕路径,创造出全新的立体交织游走体验,同时也使有限的空间在循环交织的游走过程中被无限延展。
“松软”的场地边界经过折叠后的公园自然产生了“类建筑”的模糊空间特征,使整个“折叠公园”呈现出一种连续的、既不像室内又不像室外的“松软”空间状态。游园者被“包裹”其中,既能遮阳避雨又能与清新空气无缝融合,将同时获得身体上的“蔽护感”和心灵上的“自由感”。同时这种“松软”的边界状态和其中的人群活动也极大消除了建筑与城市之间冷漠的对立关系,在二者之间形成一种“柔软”的过渡。“折叠公园”面向街道、庭院和建筑各楼层均设有出入口,人们可以从多个方向平等的进入“公园”,智能门禁系统可以确保公园中的活动不会越界到室内。“公园”中的每一个路径交汇处都被设计成放大平台,摆放着接地气的老北京竹椅,为游园者提供了多个不同尺度和标高的歇脚点。
“自由生长”的公园我们在“公园”中还设置了秋千、吊床、拳击袋、跷跷板、滑滑梯等各种有趣设施,吸引人们参与其中,鼓励人们相互遇见,继而触发更多的有趣活动。人们也可以把这个公园想象成一个巨型“乐高玩具”,只要有新的想法都可以“插接”上去,让这个“公园”可以伴随人们的想象力“自由生长”。“折叠公园”结构构件的最初设想是采用常见于工地的脚手架,目的是让“折叠公园”可以成为一种极其廉价且可快速组装、拆卸和复制的城市“触媒空间”通用策略。但由于结构工程师实在无法找到关于脚手架作为民用结构体系的计算依据,当时也没有任何可以参考的案例,无奈最后只好选用“可以计算的”方钢管和工字钢。
为营造真实的公园氛围,我们利用立面网格设计了大量绿植墙。但在施工过程中,图纸中的真实绿植竟然在施工方的中标清单中变成了“人造”绿植,在与施工方据理力争无果后,我们最终没有同意假绿植方案。但项目建成后我们发现,缺少固定绿植的“公园”反而给使用者留下了更多的想象空间,业主和社区可以根据不同需求选择不同的装扮主题和“绿化率”,让“公园”呈现出更丰富的可能性。“咫尺之内,另造乾坤”。原本仅用于“宣告”领地范围的冰冷“边界”,在这里成为了人人共享的“活力触发带”,为城市日常生活注入了全新活力,现已成为社区中最受欢迎的地方。
“触媒空间”的延申
安装在“折叠公园”上的篮筐使前院成为了街道中唯一的篮球场,随时可能上演一场街头篮球,而此时“折叠公园”则成为了看台,为观众提供不同的观赛视角。“折叠公园”中的游步道将人们自然引至屋顶,使原本闲置的屋面也成为了“公园”的一部分。“F”形屋面的长边被设计成慢跑区,两个短边被设计成酒会区和迷你GOLF健身区,屋面之间的高差则被设计成了半围合的小剧场。开阔的视野和便捷的可达性鼓励人们在此运动、休憩、聚会,也可以举办各种有趣的社区活动。面对撑满了整个用地的建筑,设计并没有对其外观进行雕琢,而是用镜面蜂窝板覆盖了所有朝向场地内部的立面,让建筑尽可能消失在环境中,也让变化的环境和人们的活动成为最生动的建筑“表情”。原本狭小的庭院和有限的“公园”也在镜面反射中被无限放大,在亦虚亦实之中,空间实现了“反折叠”。
建筑室内改造原派出所内部空间狭小幽闭,与自由开放的新媒体办公空间有很大的冲突。设计在保留主体结构不变的基础上,对内部空间与流线进行了解构和重塑。门厅的外墙被一个轻盈通透的玻璃盒替代,最大限度消隐了门厅与前院的边界,将充沛的阳光和前院的景象引入室内。门厅内侧同样置入一个玻璃盒作为健身房,半透明长虹玻璃使盒子内外的活动在盒子表面形成有趣的光影互动。
门厅南侧的楼梯间被扩大成通高中庭,使原本相互隔离的三个楼层可以取得视线与空间上的联系。楼梯自身也被拆解和重构,错位穿插于中庭之间,旨在创造尽可能多的让人们相互看见的机会。通过空间“微腾挪”与功能复合,大量空间被赋予多重用途,例如走廊宽度通过精确计算,融入了阅览室功能;楼梯最底部梯段被放大成原木退台,可兼做展示台和休息阶梯;首层空间向内院拓展,围绕立柱形成吧台工作区;空中向外生长的玻璃盒既是会议室,又是可以荡秋千的休息室。
结语这或许是一次“不正经”的建筑设计,原本需要被重点关注的、占据了整个场地的建筑,最终却消失在了环境中。而建筑之外那些微不足道的、甚至被忽略的空间,在这里却轰轰烈烈的成为了场地的主角。在我们看来,建筑并不是目的,而只是一种媒介,相较于创作一座精致的、英雄般的“建筑”,我们更愿意让建筑师和建筑都往后退一步,在这里呈现一种平淡的、松软的、让人愿意靠近和参与的空间“状态”,希望这种空间状态能够“润物细无声”的吸引和容纳公共生活,并持续滋养和生发出新的城市活力,即便这并不是一座公共建筑。本次设计无意追求新奇的形式,只是尝试从发掘城市公共空间潜能的角度出发做一次自下而上的探索,努力从“约定俗成”中发现一些被忽略的公共价值,并希望能为类似项目提供些许启发。设计与建造过程中遇到了诸多困难和挑战,特别感谢属地政府和使用方的信任、支持与协调,让本次探索得以实现。
改造前
项目图纸
△功能分区
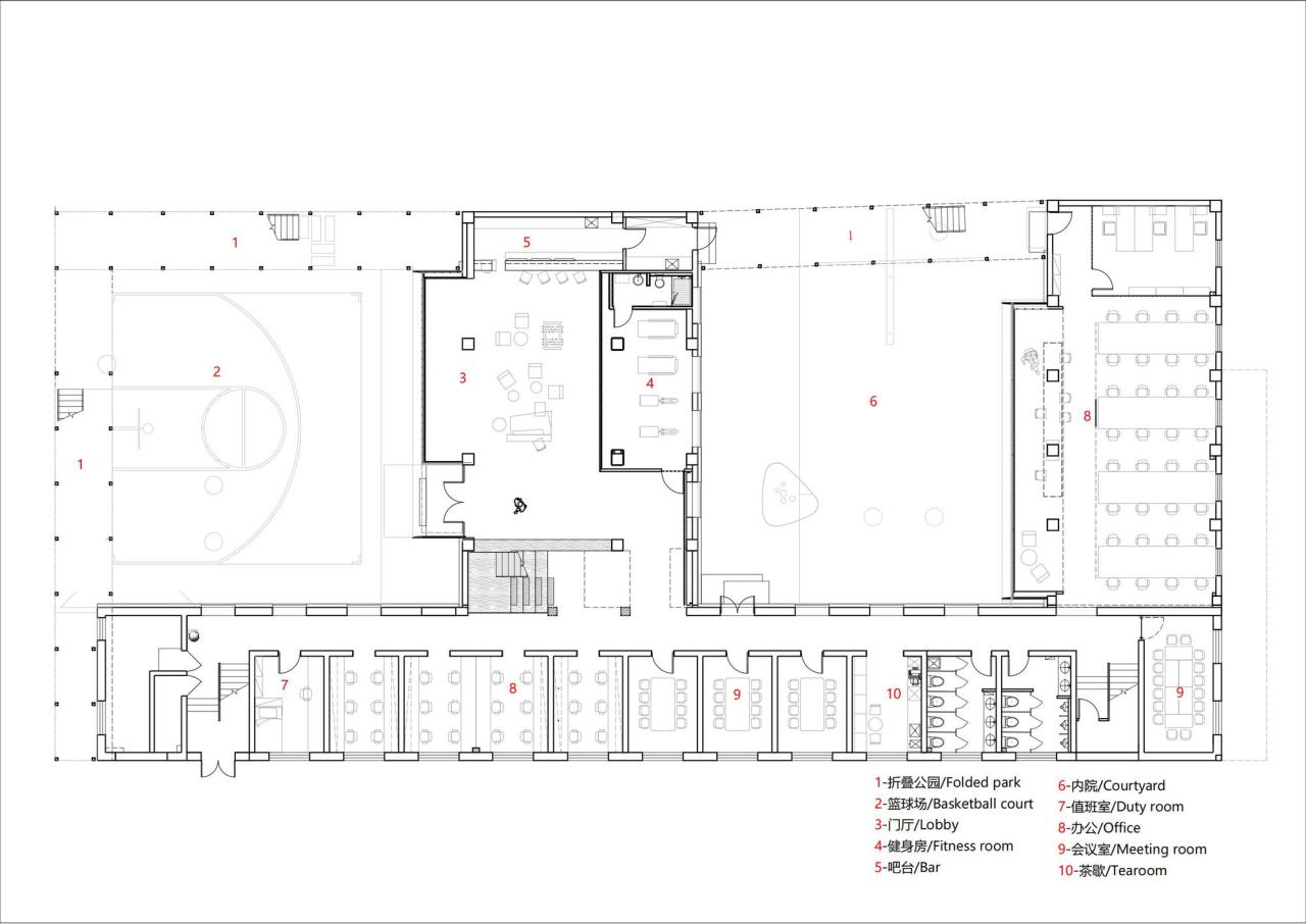
△一层平面图
△二层平面图
△屋顶平面图
△立面图
△剖面图
△楼梯剖面图
项目信息
建筑师:靠近设计
面积 :1844m²
项目年份 :2019
摄影师 :nature image
主创建筑师 :马迪
合作方 :浙江工业大学工程设计集团有限公司
项目使用方 :钛媒体集团
地点 :北京

BIM建筑网




















































