佳禾园自然教育营地位于惠州良井镇黄洞水库与黄洞村之间的一片田野之上,四周丘陵环绕,北面远眺是黄洞村落的建筑群,其间田埂交错,阡陌纵横,田园如画。“希望这里成为孩子们以及其他游客体验乡村生活的乐园”业主方说道,“同时也希望能延续客家的文化内涵”。以此出发,我们研究场地的自然资源优势和市场客户群特征,希望创造出自然与院落空间相互交织的居住体验与生活记忆。
△漂浮在田野上的一朵怪云
我们整个设计的概念是“田野上的现代聚落”,是根植于客家传统文化的一种在当代的抽象演绎,以此去创建出一个现代人回归田野的精神堡垒。这是一个具有围屋性质的单体建筑,但同时它的体块又像是村落里群体房屋的堆积。这样一种将民宿的居住模式和建筑形象,与乡村聚落特征整合的模式,能够带来更加丰富的居住体验,同时也是对客家精神文化的一种寄托。
建筑外观——房子堆
我们的“聚落”是田野上的房子堆。在同一片田野上,在不远不近的地界上,一簇簇由村居堆积成的房子堆,或远或近,或大或小,灵动地自由组合,构成了一个村落的建筑生态。
△延续村落尺度和肌理的房子堆
△晨曦中的“当代围屋”
△高低错落的白色房子
△局部立面
△点式与垂直细窗制造出不同的光影效果
核心空间——戏台
客家围屋的核心建筑就是祠堂,位于正中,是集宗族祭祀、民俗礼仪、学童教育等功能于一体的场所,是客家公共文化交流的核心空间。我们的设计以此为依托,在前后两个院落之间也设置了一个这样的核心空间——戏台空间,南北通透,人们可以在这里进行各种公共文化交流活动。同时,在周围一片呈现灰白的建筑中,我们给戏台空间设置了一个红瓦顶,这是一种客家传统祠堂文化的符号象征,也是一种现代对于客家精神内核的浓缩与延续。
△与客家围屋的空间转译
△位于中庭核心空间的红色瓦面戏台
△堤桥、月亮洞之间相望不相连
院落——水院与山院
院落作为传统民居围合出的内部环境,一定程度上是一种对外部环境的叛逆。我们的建筑“聚落”围合出了前后两进动静截然不同的内部庭院,一为水院一为山院。由大门走进,穿过大堂,首先引入眼帘的是水院,池中的树在宁静氛围中拓展出一抹生命力,与断桥、片墙、平台等形成了一种暧昧的对话,呢喃细语间,感受云影的瞬息万变。
△水院,延续了堤桥、栈道、影壁、月亮门等传统建筑元素
△缝隙间的水院
山院由舞台、餐厅、儿童活动室围合,成为了公共活动空间的中心。以“田野、远山、院子”作为线索,碎石道路、草丘小亭是抽象后的山河湖舟,从而实现外景与内院的转换呼应,儿童也能在其中自由地穿梭玩耍。
△山院
△聚阶拟山营造趣味空间
△延续传统戏台的舞台中心功能
塔楼——精神灯塔
传统村落多在入口处设置塔楼,既是制高点可俯瞰乡村及周边环境,向村落鸣报情况,亦是村落意识形态以建筑的形式展现的精神形象。民宿的入口设计以此为原型,也创造出了一座可以眺望田野、水库、村庄的塔楼,它是“聚落”入口的标志,也是整体场所记忆中,构成建筑形象和性格的重要一笔。
△塔楼
功能流线——合而分之
建筑的整体布局延续客家的围屋建筑设计手法,保持“三堂二横”的祠堂形式,整体围合又有所分割,与当地居民村落相呼应。我们在新旧之间寻找平衡,化繁为简,顺应当今需求,把围合进行拆分,使之不同于围楼的回廊模式,而是塑造的一种更为独立的流线形式。我们将居住部分打破“以內廊串联房间”的传统布局,改以套房为基本单元,使其更好地服务于家庭为单位的出游群体。整个建筑空间设置着不同的流线,看似相连却互为独立,整体打造了一种在山间村落中行走的感受,使得穿梭于其间也有种别样的体验。
△建筑组合
△塔楼大堂及餐厅图书馆流线分析
清风吹拂过水野稻田,阳光在蓝天白云下投射下斑驳的光影,交织在这片草野上。如何将这片水光山色自然地引入建筑的室内是我们设计过程中不曾中断过的思考。我们将建筑最主要的公共活动空间安排在南北朝向上,以保证其拥有朝向稻田和水库的最佳视野;其次设置了大面积的门洞开窗,去模糊室内外的空间界限,使得来自水库的湿润空气和田野的青草气息于室内与庭院中自由流动;同时,我们大量运用木质材料进行一体化制作,去打造温馨舒适的环境,使得内外氛围达到协调统一。
△大堂,回归自然,简洁质朴,契合归善里的文化内涵
△餐厅,两层高的挑高以及两边的大面积门窗带来了空间的通透呼吸
△儿童室,内外呼吸相通,浑然一体,亲近大自然
△阅读空间,位于三层,面向水库,为旅客提供一处瞭望、思考、冥想的私密天地
△客房卧室,大开窗采光,让室外的田野美景一览无余
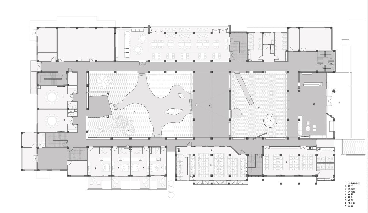
项目图纸
△剖面图
△首层整体平面图
△二层整体平面图
△三层整体平面图
项目信息
项目名称:佳禾园自然教育营地
设 计 方:广州城外建筑设计有限公司
设计团队:陈洁琦,林旺铭,沈莹颖,黄毅源,陈振辉,陈志毅,翁雁华
摄影版权:潮声
项目设计&完成时间:2020.11~2021.9
项目地址:广州省惠州市惠阳区良井镇
项目规模:5000㎡

BIM建筑网




























