北京国际戏剧中心是北京人民艺术剧院扩建工程,位于东城区王府井大街北京人民艺术剧院内,现状首都剧场东侧,是一座集话剧演出、艺术创作、排练、展示、机房、停车等于一体的综合观演建筑。
北京国际戏剧中心的建成,使北京人艺又增添了两座新剧场,包括一座中型专业话剧剧场“曹禺剧场”,容纳约700名观众;一座“人艺小剧场”,容纳约300名观众。项目总建筑面积2.3万平方米,地上3层、地下4层,建筑最高处台塔高度为25米,结构形式为钢筋混凝土框架剪力墙结构。
坐落于老城中心的胡同里,设计需要利用紧凑的布局化解用地和功能需求的矛盾。项目布局为南北向,小剧场位于曹禺剧场后舞台的上方。外立面设计与“首都剧场”色彩相协调,采取简约大气现代风格。在剧场外复建了一座传统四合院,与周围环境相协调。进入剧院,前厅富有视觉冲击力的玻璃砖墙展现在人们面前,玻璃砖的尺寸模仿了四合院的青砖尺寸。
以木色、灰砖色为主调的“曹禺剧场”,整个观众厅围合感好,尺度合宜,稳重、传统和亲切。观众厅由池座和两层楼座组成,内部多种表面凹凸造型与肌理,既提供了微扩散面的声学效果,又与后部深灰色凹凸不平错落有致的“灰砖”GRG墙面一起,形成冷暖与深浅对比,契合北京传统民居四合院的设计元素。
黑灰色为主调的“人艺小剧场”是典型的黑匣子式小剧场。墙面分普通和微穿孔吸声两种表面处理方式,每块板材设计成楔形单元块随机排列,颜色从黑色到深浅不同的暖灰色。
北京国际戏剧中心项目落成后,于2021年7月进行了运行,观众反馈非常好。继承首都剧场优秀传统,本着和而不同精神,北京国际戏剧中心项目打造了具有时代特色的新型剧场,为王府井核心区又增添了一处重要的文化新地标。
项目图纸
△总平面图
△一层平面图
△二层平面图
△三层平面图
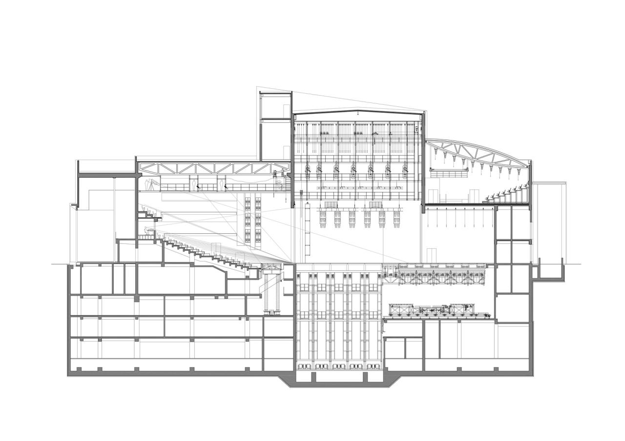
△剖面图
项目信息
建筑设计:北京市建筑设计研究院有限公司胡越工作室
面积 :23026m²
项目年份 :2021
摄影师 :Xiangfei Chen
主创建筑师 :胡越
设计团队 :胡越、邰方晴、游亚鹏、陈威、赵默超、梁雪成、陈向飞、吴爽、张燕平、奚琦、杨晓宇、马云飞、薛沙舟、赵墨、严一、申伟、吴威、张林
撰稿人 :陈威
结构设计 :北京市建筑设计研究院有限公司
施工方 :北京城建亚泰建设集团有限公司
舞台工艺 :北京博奥特舞台设计咨询有限公司
声学顾问 :华东建筑设计研究院有限公司/
古建保护顾问 :北京方州基业建筑设计有限公司
室内设计顾问 :中孚泰文化建筑股份有限公司
幕墙顾问 :建研科技股份有限公司
照明顾问 :天合光音照明设计(北京)有限公司
地点 :中国,北京

BIM建筑网




























