产业发展是城市生长的动力,在当下信息时代,高新技术产业已成为新的增长点。因以人才集聚与密集的智力劳动为特征,其创造性的工作模式对物理空间提出了新的诉求,而相宜的工作场所也将推动培育人们的前瞻思维,两者互动关联。gad新近落成的办公园区正符合这样的趋势,从选址到功能的衍生都紧密围绕着生态理念展开,内部空间组织灵活且复合,打破了传统写字楼整齐划一的封闭场景,为城市勾勒出职能更丰富的公共空间。
项目基地所在的浙江省舟山海洋科学城集聚了众多海洋科技创新资源,且西侧为规划绿廊,南临滨海公园,拥有一线面海的景观资源。为了落实上位产业布局和空间规划,并充分利用周边良好的景观条件,设计团队提出“企业社区”的概念,通过组团化的布局形成园中有院的开放交往空间。标准办公单元遵循弹性、高效的原则,以适应孵化园区内各类新兴中小型企业的办公需求。
项目创新性地提出分散化独栋布局,与传统的塔楼加裙房的布局方式不同,围绕着中心庭院,13个相对独立的标准单元按3至4个形成一组,其间各种尺度的庭院与连廊形成完整的底层交往空间,以营造社区氛围。车行交通组织在园区外围解决,内部适宜步行观景。建筑物体块组合关系丰富,通过屋顶轮廓的变化形成南低北高、西低东高的天际轮廓线,面向海景呈梯级式跌落。
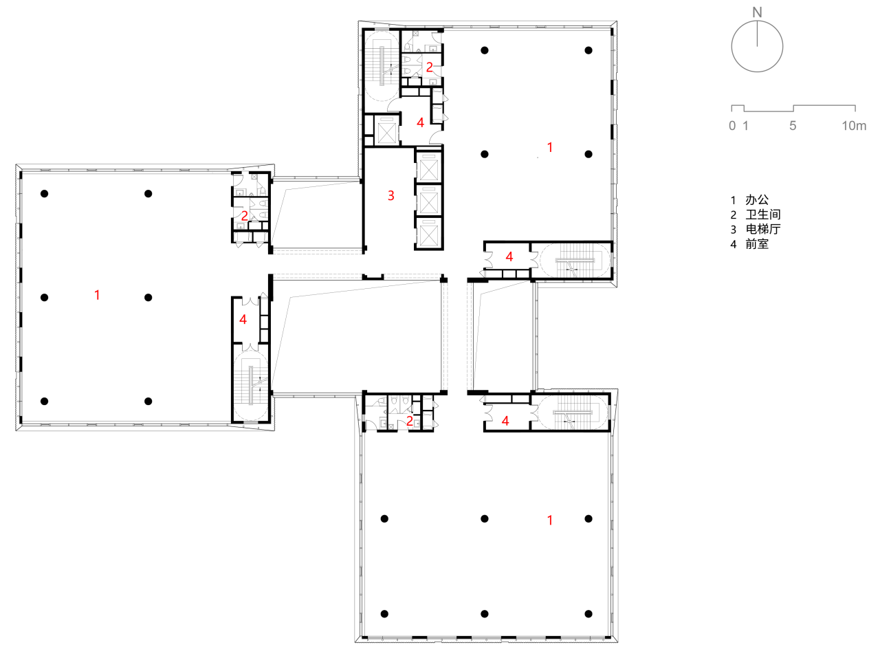
组团单元柱网规则,布局弹性机动,基本单元层20×20米,柱网8.4×8.4米,服务空间集中设置,释放出完整且三面开敞的办公空间,可根据入驻企业的规模切分使用,增强了园区经营的灵活性。
立面选用了白色穿孔网板与LOW-E玻璃幕墙结合,开启扇藏于白色穿孔网板之后,形成虚实对比、开阖有度的整体形象。穿孔板这一材质避免了楼栋间距较近带来的视线干扰,其45%的通透率也可通过在东西两侧的大量使用遮挡阳光直射,有效降低建筑能耗。
结语
办公园区的内涵正在不断外延。通过丰富的经验积累,gad积极预判未来的办公模式,不仅塑造出弹性化的功能空间与自然生态互融互通,承载后疫情时代对人性化办公的关照,也着力建构园区内外的对话关系,使其服务于区域产业结构的升级和优化,激发更具公共关怀的城市理念。
项目图纸
△总平面图
△一号楼标准层平面图
△四号楼标准层平面图
△剖面图
项目信息
项目地点:浙江,舟山
详细地址:舟山市临城新区海洋科学城
项目类型:办公
设计时间:2017
建成时间:2021
项目规模:46248㎡
设计单位:gad杰地设计
项目总监:张微
项目主创:吴克锁
完整团队成员
建筑:孙骏 陶斯亮 舒湛 蔡恒屹
结构:李小玲
给排水:张跃强
暖通:张言军
电气:卓祖航
摄影师:存在建筑,gad

BIM建筑网
















