随着城市规模的不断扩张以及可持续观念的更新,趋于混杂多样的城市功能正朝着竖向维度寻求有序的组织。顺应这提速的发展进程,人们的工作与生活紧密交织,如同齿轮般精准转动,亦居亦游的丰富日常更有必要在未来被引导重拾。
新世代新构想
基地位于杭州城西科创大走廊的起点,西侧毗邻阿里云谷、西湖区科技园、紫金众创小镇,南侧为浙江大学紫金港校区,北面则是既有的生活住区。得益于杭州对特色产业的培育,区域内集聚了众多相关人口,将发展成为联系产、学、研的纽带。我们将这座综合体的使用客群定位在专才、创客、留学生这些年青一代。他们身上带有鲜明的标签,例如敢于接纳新事物、热衷社交、注重高效便利兼备品质感的生活方式等等。基于周边现有的开发密度,商业配套的丰富度亟待提升,于是我们着眼于城市理想与年轻人群的行为模式,以设计回应当下对一站式体验的新需求。
内外空间的整合
考虑到园区东向衔接杭长高速的起点,亦将承担城市展示面的作用,设计首先从体块关系予以回应。春树云筑顺应基地边缘线,在环形布置的商业裙房之上叠加四栋主楼,并采用收分、退台的手法勾勒了舒展简练的横向肌理。
建筑的平面与体量经过收放呈现出整体性,围合出一个相对内向的公园空间。南低北高的布局形式来自对场地人流朝向的剖析,在西南角设置主入口,同时打开若干转角作为园区的呼吸通道。模糊化的实体边界使得中心公园与外部环境相连,既为底层商业集聚人气,也为城市贡献了充满活力的公共活动空间。
场景切片的联动
在数字时代的冲击下,年轻群体普遍偏爱屏幕社交,设计继而从线下的现实场景切入,围绕着开放、合作、共享的关键词,为未来使用者的生活方式提供了崭新的诠释。在集约利用城市土地的前提下,办公、商业、休闲、居住等多元业态分别嵌置于单元化的空间模块中,串联成为一座立体的功能系统。
在这座引力场一般的公园式社区,各个空间模块却不限定于单一功能,而是可以依照时间维度赋予年青一代灵活的选择。不论是商业中庭的大台阶,还是高层内部的小型中庭,都将促成园区内部跨领域生产资源的流通。对于环境的营造,主要采取首层架空方式,预留灰空间作为庭院绿化的延展,并逐级叠退设置有景观平台。漫步其间,封闭隔离的空间感被消散,取而代之的是步移景异的放松感受。
结语
面对日新月异的城乡风貌,春树云筑从垂直方向探索了共享生活的可能,将差异化的空间体验包容于层次交错的立体园区,更进一步让居住工作在此的社群参与运营,循证设计。这也包含了我们对未来的前瞻思考,将单一的环节复合,令多元的个体汇聚,以建筑承载新兴的生活方式,从而引领周边片区的生长。
项目图纸
△区位示意图
△总平面图
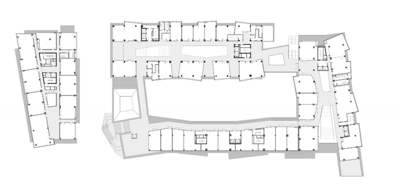
△一层平面图
△二层平面图
△三层平面图
△剖面图
△首层空间结构图
△功能示意图
△形体结构示意图
项目信息
项目名称:春树云筑
项目地点:浙江,杭州
详细地址:浙江省杭州市西湖区紫萱路与吉园街交叉口
项目类型:办公&商业
设计时间:2017年
建成时间:2021年
项目规模:9.3万㎡
设计单位:gad
项目总监:张微
项目主创:何桢
完整团队成员
建筑:张微、何桢、郑伟健、吴晓东
结构:张波、康建红、陈沛然、曾宪源、刘俊
给排水:林翠英、杨航
暖通: 吴梅艳
电气:罗建军、吕伟立、张磊
其他参与者:
室内设计:钟志军
景观设计:张演屹 张明勇
业主:杭州西投绿城置业有限公司
摄影:姚力视觉工作室
结构手法:框架剪力墙结构
建筑材料:玻璃幕墙+铝板

BIM建筑网





















