环绕 EZ 幼儿园的足羽山(Mt. Asuwa)在当地人心目中是县城的象征。孩子们绕山而行时能够更亲近地感受自然,还会用丰富的自然元素为素材发明新奇的游戏。日本福井(Fukui)幼儿园重建项目将孩子们对足羽山的记忆引入室内,融入日常游戏设施,以此改善幼儿园的内部环境。
攀爬网的设置满足孩子们进行“跳跃”、“摇摆”动作的需求。楼梯下的木球池进一步地让孩子们进行“翻滚”、“捡拾”和“投掷”的动作。
由斜坡构成的秘密基地供孩子们“滑动”、“攀爬”和“躲藏”。孩子们在丰富的空间类型中伸展四肢的同时,也在不断地发明创造新玩法。
另外,常规幼儿园的楼梯都有围栏控制以防儿童自行上下,EZ 幼儿园却反其道而行之,将楼梯放置在建筑中心,不同年龄的孩子们在此聚集交流。楼梯和台阶成为了充满童趣的游戏场所,一如在山间嬉戏打闹的场景。
足羽山简单、自然,给孩子提供了自由创造的空间。同样地,幼儿园的环境旨在让孩子们自主地挑战、探寻,用想象力和创造力丰富空间的内容和层次。
项目图纸
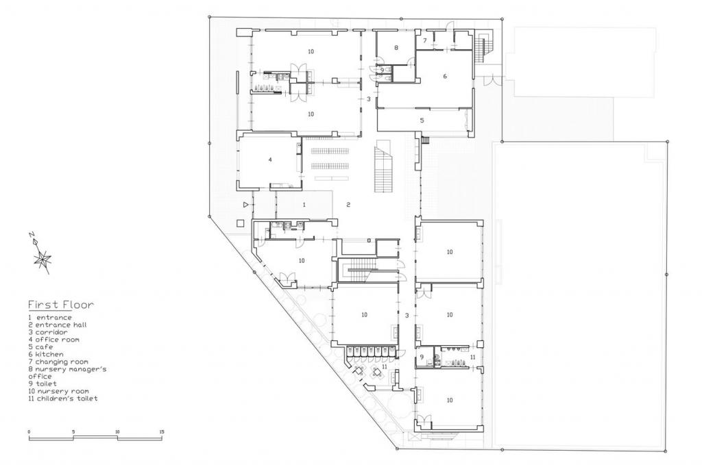
△一层平面图
△二层平面图
△三层平面图
△立面图
△剖面图
项目信息
建筑师:HIBINOSEKKEI, Kids Design Labo, Youjo no Shiro
面积:1016 m²
项目年份:2019
摄影师:Toshinari Soga (studio BAUHAUS)
厂家:Bozo, GANTAN BEAUTY INDUSTRY, KIDS DESIGN LABO, Puppy Kids Chair, Runon
主创建筑师:Hibinosekkei, Youji no Shiro, Kids Design Labo
地点:日本,福井

BIM建筑网



























