上海市实验学校嘉定新城分校(上实嘉分,JSES)位于人口快速导入的嘉定新城,是上海“优质扩容”背景下推动建设的高品质学校之一。这是一所与众不同的“跨界的学校”,从城市角度,学校的空中连廊跨越了地块和道路的边界;从项目角度,校方的全过程介入跨越了教育和设计的边界;从空间角度,建筑、室内、景观跨越了各自的专业边界,融为一体。
源于总校独特的创新特质和办学理念,上实嘉分包含了教学、艺术、体育、未来、学习等核心模块,结合基地条形机理和周边现状元素,形成“一体、两翼、三轴”的立体式集约化布局。位于不同楼层的南北通道将各模块连接,建构出一个互相通达、紧密连接的校园和丰富多元的室内外活动空间,并充分融入步行优先以和儿童友好理念。
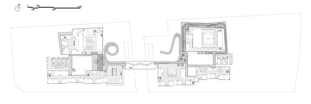
面对独立的两个地块,设计提出“街区综合体”策略,通过空中连廊和城市道路空间形成一个复合型空间。连接起中、小学两个地块,以“分而不离“的方式形成一体化校园。贴合城市道路是小学中学东、西两翼片区,是学校使用率最高的门户片区,建筑、公园、平台组合出丰富的层次和变化。西翼片区的学习中心是传统学校图书馆升级而来面向多年龄段的新型学习空间,东翼片区的未来中心采用叠加式设计拓展出满足会议、报告、演出、展览等多功能空间。两翼的步行主入口采用公园式设计。
学校的南轴包含沿河设置的教学楼和公共空间,确保教室及教师办公室拥有最优朝向和景观。教学楼的楼层包含三套“两室一厅”模块(每两间标准教室共享一间讨论厅,可根据需求独立或共享)。教学楼的走廊采用加宽设计,满足学生课间休憩、活动与交流需求。室外的游戏花园和放松花园位于教学楼南侧,利用消防通道日常可作为休闲活动场地,教学楼的屋顶全部设计为可进入的花园。
学校的大体量单体建筑与北侧香樟林形成了北轴,降低了城市道路对于校园内部的噪音干扰,也形成了简约的校园空间天际线。分层的建筑退台增加了校内外空间的对话。位于小学部地块的艺术中心通过集约化设计,融合了剧场、教室、餐厅等多种功能。位于中学部的体育中心是学校最大的单体建筑,地面、二层、三层均可进入,提供丰富的体育功能,位于东北角的趣味滑梯可直达地面,为大体量建筑带来亲和友好的体验。
学校的中轴长度达到 550 米,是一条全开放式设计的景观廊道,融入了两端城市天际线。花园、庭院、天桥、地下、平台空间连接了南北两侧的建筑,创造出最具活力和多变的校园公共活动空间。赛道乐园是中轴西端 8000 平方米的无动力乐园,包含运动活力、游乐探索、自然体验三个片区,为学生提供充满吸引力的户外活动空间,让成长在游玩过程中自然发生。地质花园和旱溪栈道融入雨水渗透、收集、再利用等可持续设计。
山谷花园和台地花园利用 5 米的高差形成立体式花园连接二层平台和地面。地下大厅位于地下一层,通过 10 米挑高,集合了体育锻炼、文艺表演、接送集散等多功能,光环乐园位于地下大厅上方,通过采光井补充自然采光,可以作为游玩和休憩的空间。树桌花园位于中轴中心区域,通过林荫乔木与室外桌椅的组合,创造学习、交流、休憩一体化的的场景。体育乐园是中轴东端的户外体育活动空间,包含 300 米标准跑道、足球场、球类活动场地以及健身活动器械场地,具备向周边社区开放的可能性。
跨界的上实嘉分通过教育与设计融合,兼顾了“城市与课桌”两种尺度,创造出多样化的使用场景,空间的公共性和参与性得到最大程度体现。学校不仅是单栋建筑的简单集合,而是融入对教育的理解,对未来的展望,以及对人与自然和谐共处的思考。“跨界”不是对现有规则的挑战,而是一种创新和发展,造就了充满吸引力的个性化学校。正如校长为新生介绍学校时所说,“这里是一座孩子学习的乐园,每一处都可以发生学习,有趣的知识可以用各种方式来学习”。
项目图纸
△地下一层平面图
△一层平面图
△二层平面图
△三层平面图
△四层平面图
△五层平面图
△六层平面图
△立面图
△细部结构大样图
项目信息
建筑师:大观景观
面积:77233m²
项目年份:2024
项目负责人:郭鸣
建筑设计:胡盼悦、郑宇飞、钱霖霖、彭炫英
结构设计:徐长海、罗勇培、刘晓莉、魏俊、戴光毅、陈明、李澜萱、程进
室内设计:上海火翼装饰工程有限公司
项目负责人 (室内设计):吴庆华、崔豪
设计团队 (室内设计):张伟、奚进
景观设计:上海聚隆景观设计有限公司
项目负责人(景观设计):张向阳
设计团队(景观设计):王骏杰、孙杰、张燕飞、张先之、吕文瑛、尚倩云、潘尔超、邹敏
给排水设计:郑代俊、吴鑫、张月红
暖通设计:吴明、沈卫钢、李晋芝
电气设计:王纪元、姜垚,蒋臻,李松松,成粉强,刘丽,陈邢
绿建设计:郭鸣、李鹤、吴鑫、刘晓莉、姜垚
海绵设计:张月红
标识顾问:萬邦智合(上海)设计咨询事务所
设计团队(标识顾问):陈建、孙俊杰、杨帆、杨超
灯光顾问:上海倘思照明设计有限公司
设计团队(灯光顾问):钟鸣、孙雅娟、吴蓉、刘思辰
总体顾问:徐红 (上海市实验学校校长)
项目主持:杨晓青 (上海大观)
设计单位:大观景观
委托方:上海市嘉定区教育局
地点:上海

BIM建筑网
















































