位于年轻而充满活力的岘港市中心,AEC 4B Tower 共有 9 层楼及 1 层地下室。该项目展现了创新的建筑设计,将自然绿植融入其中,同时通过可持续策略最大限度地利用自然能源。
作为外语教育中心,AEC 4B Tower 在建筑设计中旨在体现连通性和活力。这在其开放式空间设计中体现得最为明显,该设计从一楼延伸至五楼,鼓励用户,尤其是教师与学生之间的互动交流。
这种互动交流为开放、主动的学习奠定了至关重要的基础。教室之间采用透明玻璃隔断,以减少噪音的同时保持开放氛围。建筑外部的绿植花床进一步美化了空间。屋顶游泳池为用户提供了俯瞰全市的壮阔全景,提升了用户体验。屋顶还设有被茂密绿植环绕的步行道,让人联想到乡村风光,这里成为了放松和团队合作活动的中心。
建筑外观采用原混凝土饰面,搭配环绕建筑的曲线陶土砖百叶窗系统,更加突出其特色。此外,悬挂式和固定式花盆的加入,彰显了这一教育设施的年轻与绿色活力。室内墙面和天花板均采用原混凝土和抛光混凝土饰面。建筑线条与质朴的混凝土材料相结合,营造出既吸引人又充满活力的空间——这是年轻学习者练习国际语言的理想场所。这正是 4B Tower 所力求赋予的核心价值。
项目信息
△总平面图
△五层平面图
△六层平面图
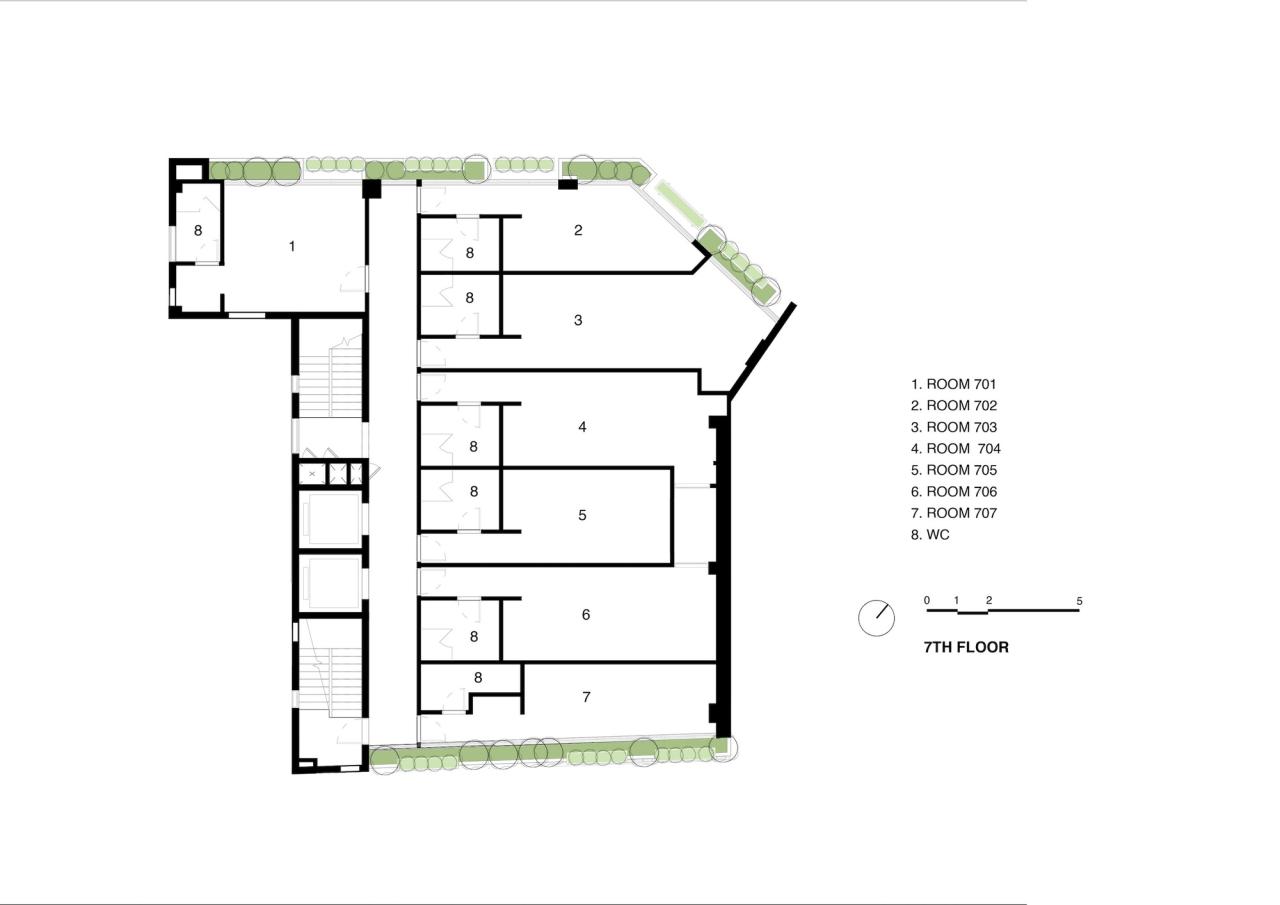
△七层平面图
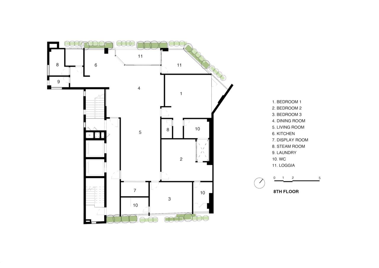
△八层平面图
△屋顶平面图
△分析图
△立面图
△立面图
△剖面图
△剖面图
项目信息
建筑师:Ho Khue Architects
面积:2780m²
项目年份:2023
摄影师:Hiroyuki Oki
合伙人:IME, Nhân Việt
委托方:AEC Academy
地点:越南,清化省
微信公众号:xuebim
关注建筑行业BIM发展、研究建筑新技术,汇集建筑前沿信息!
← 微信扫一扫,关注我们+

BIM建筑网
































