改造项目主要包括培训中心和配套酒店(唐心酒店)两大部分,坐落于开平市塘口文创小镇。用地是已经空置多年的原塘口镇政府大院,保留着三栋建于1990年代的原镇政府办公楼,并位于墟镇向田园过渡的边界地带。
整体上采用连续的地景建筑形式-“环丘”,以其为纽带重塑内外空间。环绕场地边界升起的“环丘”,形成书画长卷般的起伏平台,建立环形的步行交通系统,并限定场地中部的中心广场和面向水塘的开放空间;“环丘”结合内外融合的半开放式边界,塑造了面向水乡和墟街的不同景观界面,重新塑造建筑群与周边环境的公共性联系。
面向主街的“环丘”,以二层平台连接三栋沿街保留建筑,形成连续的开放街道界面。面向水塘的建筑边界采用起伏的坡地,在下方构成面向水塘的灰空间。;围绕场地中部的中心广场,形成逐步升起的环形架空敞廊式立体游园。这不仅提供了观赏水乡景色的开阔空间和休憩设施,起伏的坡地地形也提供了小朋友们户外自由奔跑、戏耍的亲子活动场地。
设计采取一种因地制宜的务实态度来适应乡村项目实施过程的限制和建筑形式的处理。对于改造建筑,基本维持了原有建筑的立面构图;对于加建建筑,不同结构和材料的新旧形体,形成清晰可读的体量穿插和形式对比;对于扩建建筑,通过水平延伸的地景式建筑布局,使其成为小镇的公共文化地标。
立面以一种新旧拼贴的改造姿态,慎重保留原有建筑中局部残存的典型立面片段;对于破损立面的修补,采取搭配钢制栏板、钢管窗格等工业化构件形成对比;并通过常规建筑材料的创新形式表达,重新演绎原有建筑立面中通透、开放的南方建筑意象。红砖元素贯穿椭圆形报告厅建筑室内外的各个界面,不仅塑造了“环丘”平台上极具可识别性的视觉焦点,也为报告厅提供了更为柔和的自然光环境。
项目图纸
△总平面图
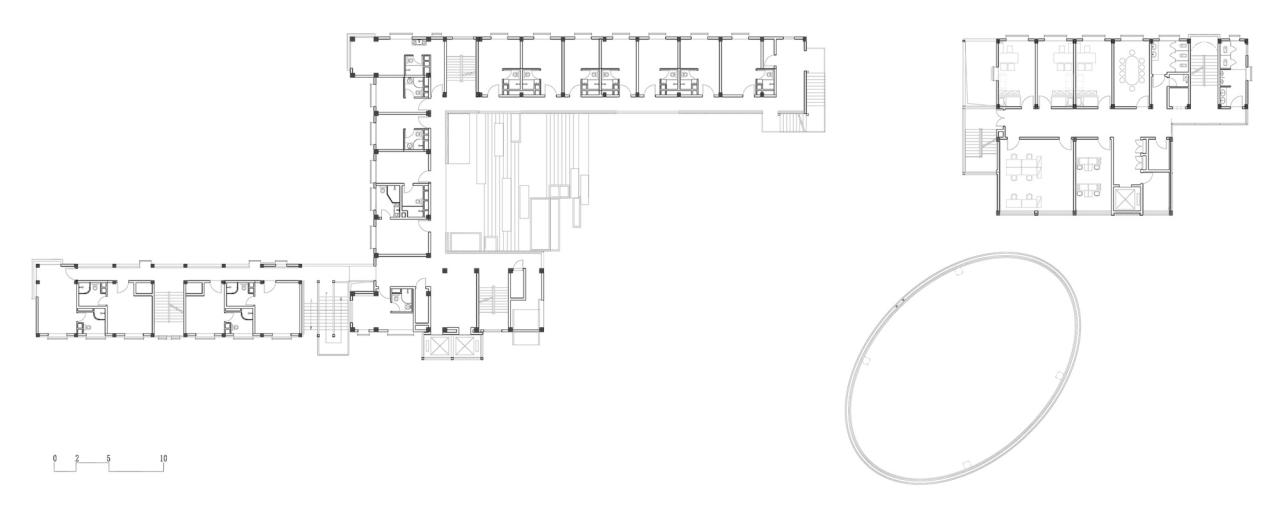
△一层平面图
△二层平面图
△三层平面图
△四层平面图
△剖面图
△细部结构大样图
△功能分区图
△分析图
△分析图
△流线分析图
△功能分区图
△剖透视
△公共空间示意图
△原始建筑图
项目信息
建筑事务所: 华南理工大学建筑设计研究院
面积: 6000 m²
项目年份: 2022
摄影师:阿尔法摄影
主创建筑师: 何小欣,苏平
设计团队: 张瀚,林琳,范静,蒋璐,张延彬,赖纯翠(建筑专业) 伍朝晖,冯舒殷(景观专业)
合作设计方: 广东蓬江建筑设计院有限公司(建筑及景观施工图配合单位), 江门恒睿建筑装饰工程有限公司(室内施工图合作单位)
委托方: 广东开平文旅发展集团有限公司
地点: 江门

BIM建筑网






















































