项目位于中国北京市朝阳区较为安静的住宅群落,设计师配合业主将楼宇之间的一个办公空间改造为幼儿园。项目地周边有规模不同的美术馆和画廊展厅,还有国际学校等教育机构,属于北京市内文化程度较高、富有艺术氛围的区域。
与中国许多大体量的幼儿园不同,该项目可容纳的儿童人数较少,注重提供小规模、高品质、精细化的幼儿教育服务。在这个运营模式的基础上,设计师巧妙利用有限的面积,打造能够感知自然与文化、培养幼儿感性发育的教育环境。
北京古时有“燕京”之称,大量的鸟类动物与筑巢的景象成为其象征。幼儿园的概念设计灵感取之于此,用“展翅飞翔”象征孩子们游戏、学习、感知、成长的状态。设计在室内和户外都保证了日常的上下活动流线,通过环境来积极引导儿童的运动,设置连贯一楼至三楼的台地型户外楼梯。即使花园的占地面积较小,以立体的方式促成了儿童成长所需的日常运动量。另外,三楼的屋顶花园连接着斜面屋顶下的艺术空间,把创作类教学活动由室内延续至户外。一楼、二楼的内部环境也通过上下层的爬网相连,在遇到寒冷的冬季时,也可保证儿童在室内的游戏和活动量。
设计还有一大亮点是,考虑到项目区域的文化和艺术氛围较强,希望把艺术以更日常、简朴的方式带到孩子们的身边,在入口处先设置了一条细长的画廊空间,这里不仅能够展示儿童的作品,也可定期展示当地的艺术家作品等,在每日的幼儿园生活与学习中,形成耳濡目染的艺术交流。
项目图纸
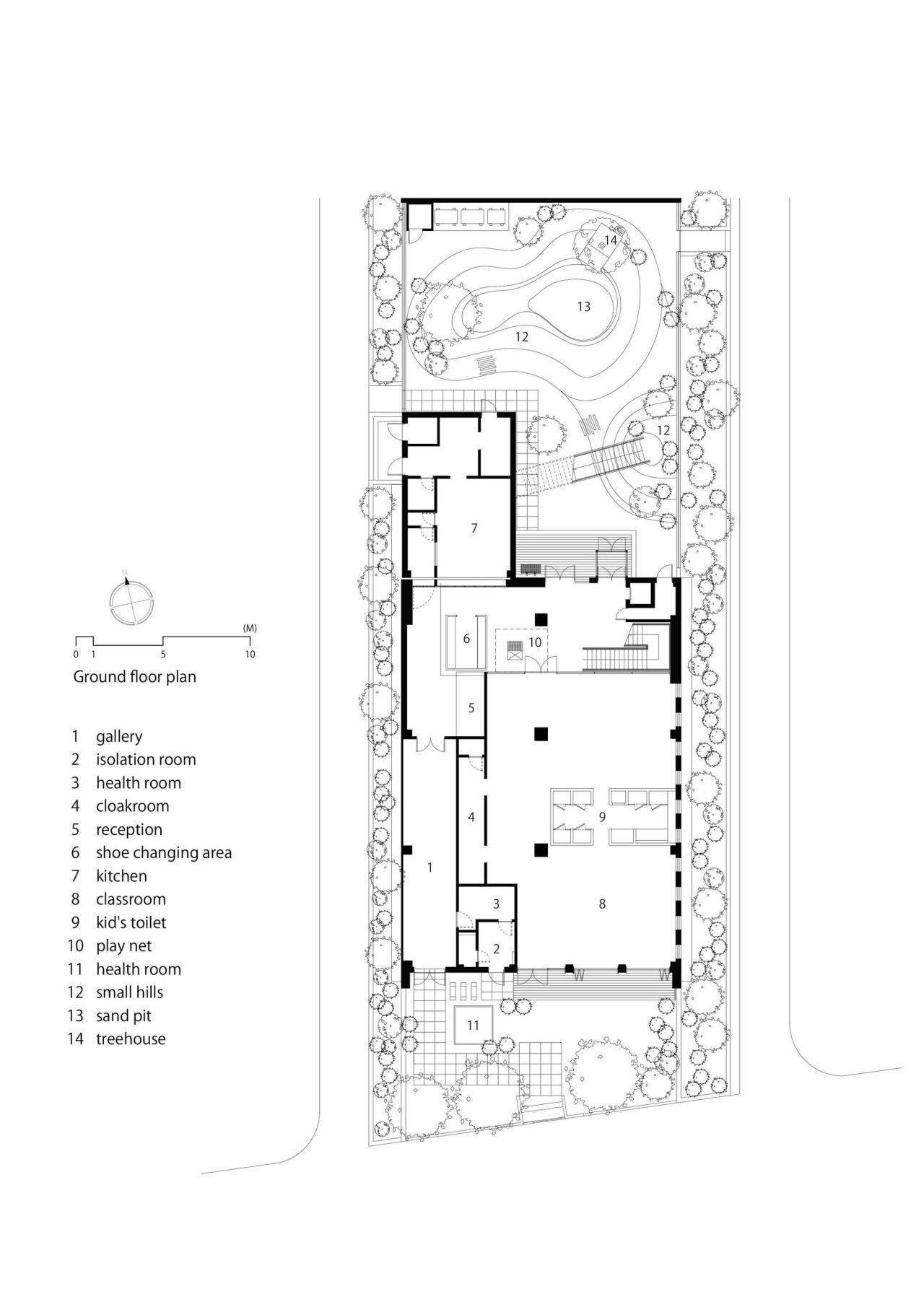
△一层平面图
△二层平面图
△三层平面图
△立面图
△剖面图
项目信息
建筑师:日比野设计,幼児の城
面积:811m²
项目年份:2023
摄影师:Taku Hibino
厂家: Daiken,Elkay,Nets Tribe
主创建筑师:日比野
地点:北京

BIM建筑网




























