Biofarma 是一家生产和销售家禽、猪和牛等动物饲料的公司。该项目源于一次私人竞赛,竞赛要求为在一块 39870 平方米的土地上建造一座包括行政办公楼和其他配套建筑在内的工业厂房设计总体规划。获得一等奖后,我们的任务是制定办公楼的执行项目。在设计该建筑时,我们考虑到在总体规划中我们有一个自由的周边环境和战略位置。我们提出了两个矩形楼层,由面向外墙的办公区组成,中间由两个内部庭院连接,创造出协作空间。两端的两个垂直流通核心区使不同楼层的员工之间有了更多的互动。上层的项目不仅包括办公室,还包括会议室、打印区和咖啡休息区。公司经理办公室分布在一个双层高的空间内,与底层的分层入口相连接,加强了机构的识别感。与入口相连的是一个小型礼堂和培训室。
建筑采用独立的钢筋混凝土结构,配有轻质楼板和平梁。围护结构由多层简易结构组成,是一种被动式可持续性元素,可提高建筑的隔热性能。在外围的柱子和梁上设计了一个带有整体前铝制细木工板的封闭结构,双层密封玻璃固定在混凝土柱上。标准型材的支架被固定在上面,由金属管组成的下部结构被支撑在支架上,上面还铺设了一层预先涂漆的灰色镀锌膨胀金属板,与铝制细木工板相隔 70 厘米,从而起到防晒作用。它与地面隔开,给人一种轻盈的感觉,玻璃上投下的阴影又强化了这种感觉。这种表皮在项目中发挥了重要作用,因为它在玻璃封闭和外部之间形成了一个中间遮阳空间,减少了阳光的直接辐射,从而降低了建筑能耗。为了避免成为外部和内部之间的视觉障碍,建议采用可根据时间打开的活动面板。作为补充,室内安装了垂直百叶窗,用户可以根据自己的需要调节所需的亮度。这也赋予了建筑公司的语言和机构特征。
在主立面,出现了不同的元素,如一个与其大小相称的标志,由于它打断了建筑的大型金属包层而引人注目,在它之前是不透明的夹层玻璃,作为标志的背景和服务区的围墙。此外,一个金属喷嘴的大窗户突出了用途的改变,这里是员工就餐区和带有休闲空间的露台,是办公室的延伸。
建筑采用钢筋混凝土独立结构,楼板和横梁均为斜面。围护结构由几层简单的结构组成,是作为被动式可持续性元素设计的,可提高建筑的隔热性能。在周边的柱子和横梁上,设计了一个带有整体前木结构的围护结构,该围护结构由铝制成,带有固定在混凝土柱上的密封双层玻璃。
普通的型材支架被固定在上面,由金属管组成的下层结构被支撑在上面,并在上面铺设了一层灰色的预涂镀锌未折叠金属板,与铝制细木工板相隔 70 厘米,从而起到防晒作用。由于与地面隔开,它产生了一种轻盈的感觉,而玻璃上的阴影又强化了这种感觉。
这种表皮在项目中发挥了重要作用,因为它在玻璃围墙和外部之间形成了一个中间遮阳空间,从而减少了太阳直接辐射,进而降低了建筑能耗。为了确保它不会成为外部和内部之间的视觉障碍,我们提出了可根据时间打开的活动面板。
作为补充,大楼内还安装了垂直条形窗帘,用户可以根据自己的需要调节所需的亮度。 同时,它还赋予了公司的机构语言和特征。
在主立面,出现了不同的姿态,例如一个与其大小相称的标志,它之所以引人注目,是因为它打断了工程的大型金属包层,前面是不透明的夹层玻璃,作为标志的背景和服务场所的围墙。此外,还有一个金属喷嘴的大窗户,突出了用途的改变,这里是员工食堂和带休闲区的露台,是办公室的延伸。
项目图纸
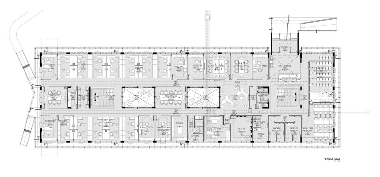
△一层平面图
△二层平面图
△立面图
△剖面图
△剖面图
△爆炸图
△剖透视
△表皮结构示意图
项目信息
建筑师:Santiago Viale Lescano + Juan Manuel Juárez
摄影师:Gonzalo Viramonte
厂家: Abest,Cortinas Suquía,ETC,Julia Sol,RASSEGNA
合作方:Salvador Viale, Tito Maximiliano Gonza, Francisco Gavilan, Nicolás Macasso, Santiago Viale Beviglia, Rocío Cornacchione, Emiliano Pino, Nicolás Borra, Lourdes Bruno, Fiama Ríos, Ricardo Cortesse, Eduardo Storaccio, Sonja Czeranski, Juan Macías
地点:阿根廷,Córdoba


BIM建筑网


































