去有风的地方,找回最初的自己。
温暖的有风小院,向往的生活。
有趣的人间烟火,温暖了乡村的十里稻香。
晚霞点燃了云,照亮星夜,流星穿过火红的云,落在洱海中化为海星辰。
苍山脚下,宁静的凤阳邑。
逆旅前行的茶马古道,岁月的光,刻在茶马古道上,少了些许茶香马蹄,却多了一道道人间烟火。
幽幽小院,推开小门,炫目变幻的云。
漫步而入,点点柔光映在,植被环绕的石墙上。一切都是如此安静,风慢慢,人慢慢。
清晨,忙碌的脚步带走了那滚着金边的红云。
午后,疲倦的睡意错失了飘过慵懒的白云。
黄昏,回家的路,偶然看见燃烧炽热的晚霞。
听风细语,看云幻云山云漫。
南诏的美,宛如一种蛊种入心田。
有风的空间,宛如一杯茶清淡甘甜。
铜灯点亮温柔的原木,时灭时亮,如云时聚时散。
扎染点缀了留白,宛如空窗不语,妙笔出绿叶。
光如人间精灵,快乐地在高冷的石材上跳跃。
时而跳入复古的铜盆里,时而跳入被扎染洗涤过的床品上。
带来一缕温情,点燃了木色清香,似清欢,待生活,养身心。
鱼儿一直很安静,它们带着大理雪山白,洱海蓝,在月白的丝河里游来游去。非遗的扎染在大学生的手里,织出一条条躺平却躁动的鱼。
知礼,交融,翻一番乡土,播上春种。
风吹过稻田,品稻香,有一种风叫做稻香知遇人间心安。
让文化产业赋能乡村振兴、打造乡村休闲旅游精品工程。
推动乡村民宿品质升级,引入人间烟火,实现乡村产业复兴。
项目图纸
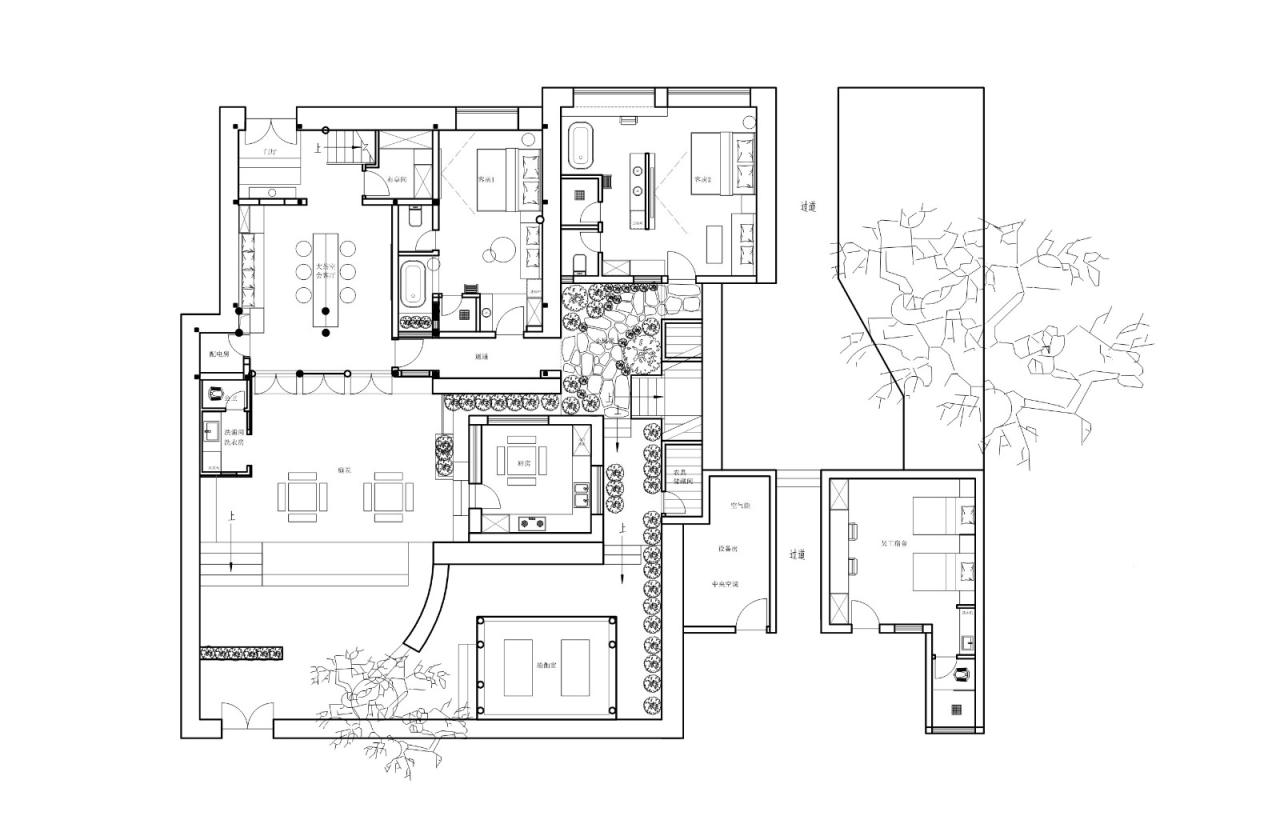
△有风民宿一层平面图
△有风民宿二层平面图
△有风小院一层平面图
△有风小院二层平面图
△有风民宿三层平面图
项目信息
项目名称:有风小院
项目地址:云南 大理
设计面积:1900㎡
设计时间:2022.12
项目策划:华策影视
全案设计:长空创作
设计主创:张宝华
参与设计:李泉江、张定远、李星瑶、王瑞、张庭恺、赵权
机构官网:https://www.ckcz.cn/
竣工时间:2023.06
软装陈设:卓石软装张海
项目摄影:李琼

BIM建筑网






































