余村印象位于“绿水青山就是金山银山”的“两山”理念发源地浙江安吉余村。两栋保留厂房建筑见证了余村从“工业飞鸟”到“生态田园”的绿色发展之路。项目于 2022 年 6 月正式完工。开放后的余村印象青年图书馆,融合多重使用功能,成为最富活力、最具创造性的乡村场所。
“余村印象”通过对乡村工业遗存建筑的更新激活,使其带着工业时代的记忆重新融入生态时代乡村的产业发展,来展现乡村振兴战略背景下中国乡村开放包容的发展态度。余村的全球合伙人计划,吸引了更多青年创业者的加入,为乡村带来了文化碰撞,这也使得乡村公共建筑需要具有更为复合的功能,以及更多元包容的文化价值。
建筑的更新侧重对地域集体记忆的延续,从田园上就开始构建记忆场所,用场地上的农作物种植复制了原来厂房的肌理,田埂路延续了过去厂房的运输道路,人们在田埂路上寻找曾经的厂房记忆,阅读余村的过去。
建筑采用“保用结合”的更新策略,保留了建筑的体量、开窗方式等原始记忆,建筑上部的围合打开,使得建筑更为通透,与青山绿水互相渗透。结合本土化的创新竹模混凝土材料及毛竹围护,完成从场地到建筑的集体记忆渗透。
建筑内部创造连续开放的公共空间,打破传统乡村书店的单一功能,提高内部空间的复合使用。并增加下沉庭院,挖掘建筑的使用价值。为了使得孤立的两栋建筑产生联系,设计增加了二层连廊,最终完成立体动线的搭建,使得建筑与环境之间建立起整体联系。化解了场地高差对建筑的影响。最终使得改造后的建筑成为一个集阅读、展览、发布于一体的乡村文化场所,供村民、新青年、游客所共享。
余村印象对各种低碳材料及技术先行先试,以此达到乡村建筑的碳中和,通过实践发掘在乡村切实可行的建筑的碳中和技术。
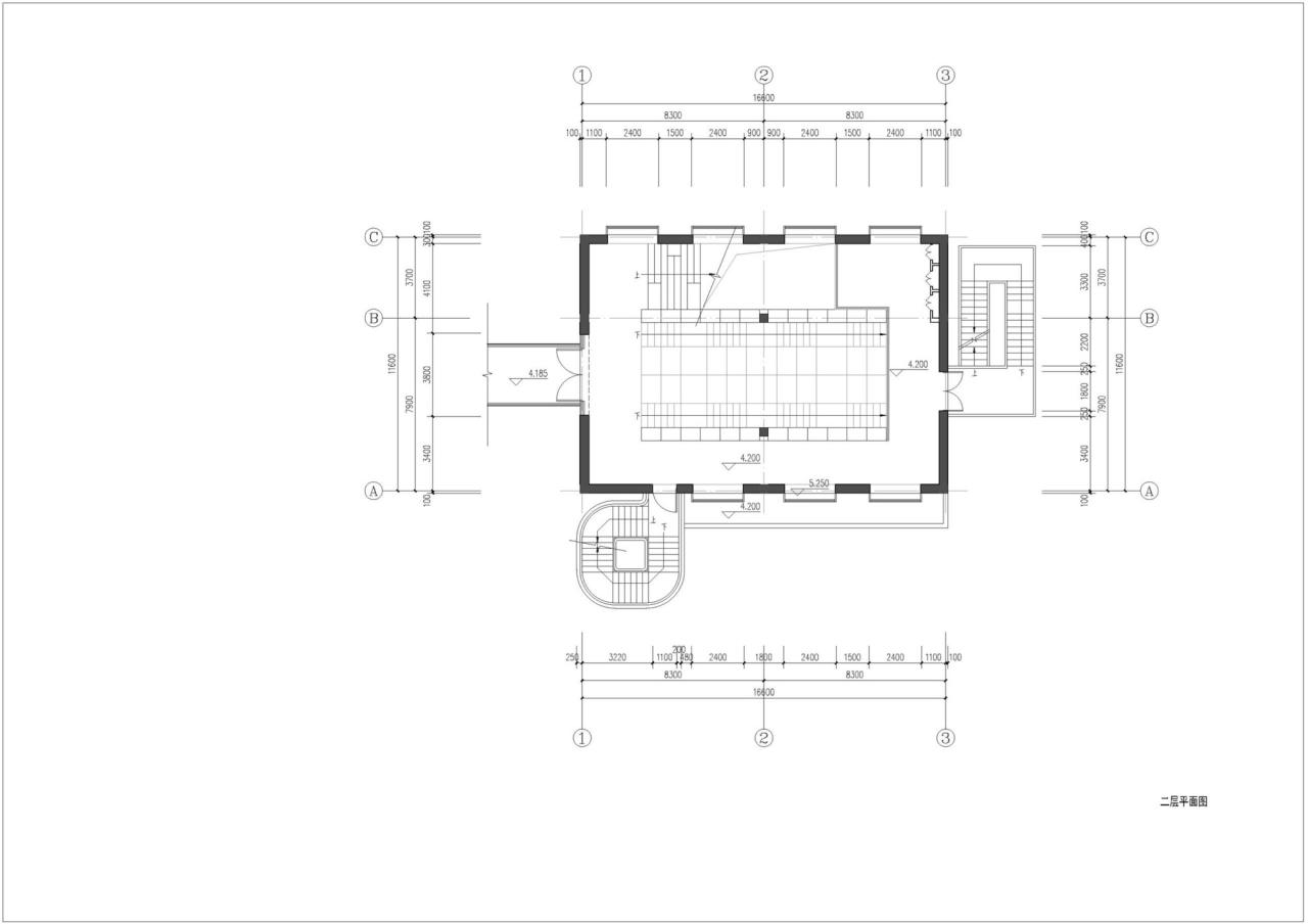
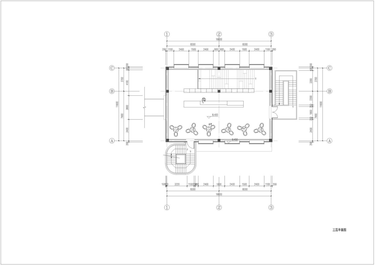
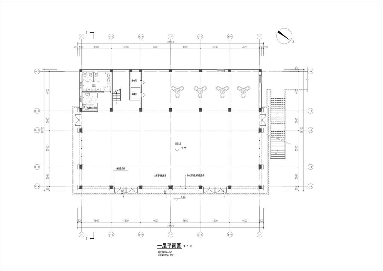
项目图纸
△分析图
项目信息
建筑师:上海交通大学设计学院杜春宇团队
面积:1623m²
项目年份:2022
摄影师:吴清山
厂家: CHNT
设计团队:杜春宇、金凌骏、杨姬、张杰、王园园、徐叶
地点:安吉


BIM建筑网








































