这所新学校附属于 Heudebouville(法国)的诺曼底村,坐落在以塞纳河谷为背景的一个景色非凡的场地上,拥有树林中的乡间风景。学校的设计借用了当地历史中的材料和形态:市中心的半木结构房屋的木材用于玻璃框架和建筑结构框架;钟楼和市政厅的石板用于覆盖保护外墙和屋顶。
场地上的房屋和农场建筑的形态被重新诠释,生成了大型的当代 Longères(longère是一种狭长的住宅,沿着其屋顶的屋脊轴线延伸,通常是农民和工匠居住的地方,是法国西北部布列塔尼和诺曼底地区的典型住宅形式)。场地的地理环境决定了工程的植入方式,房屋根据土地的轮廓插入,同时考虑到保护自然土壤。这些准则划定了操场的范围,加入了果园,并成为收集整个场地雨水的山谷,为下面的一个景观盆地提供水源。
预测未来。这种分层组织方式预先考虑了村庄的计划增长和学校的未来扩展,每户都有机会扩展。在尊重原有布局的同时,教室可以增加,食堂、庭院和院子可以扩展,设备可以容纳更多的学生和用户。在这方面,网络和消防安全系统已经考虑到并能够承载这种可能的增长。
由于完全没有中间的支承点,门廊的结构系统允许这种未来的扩建演变和房屋的完全模块化。外墙和屋顶是由场外预装的模块组成的,结合了空气/水密性、保温层和结构层。5×2 米的模块是与木匠一起用 3D 技术开发的,这使得施工时间得到了控制。
碳足迹。学校的建设是减少碳足迹过程的一部分。木材和石板的使用,光伏板的整合,以及设备加热不消耗化石燃料,使其有可能达到激进的 E3C2 和 BEPOS 水平。最后,该基地完全由当地材料和在该地区建立的公司建造。
项目图纸
△平面图
△立面图
△立面图
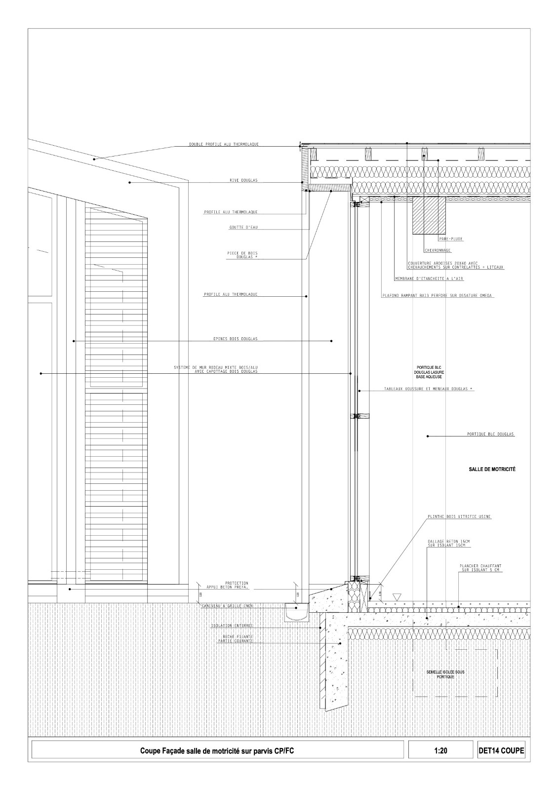
△细部大样图
△细部大样图
△细部大样图
△轴测图
△生成图
△生成图
△生成图
△生成图
项目信息
建筑师:HEMAA Architectes, Hesters Oyon
面积:1500 m²
项目年份:2022
摄影师:Sergio Grazia
厂家:Cupa Pizarras
工程量:4.5 M€
业绩水平:BEPOS – E3C2
委托方:City of Heudebouville
技术设计:BETEM
声学设计师:Impedance
地点:法国,Heudebouville

BIM建筑网


































