项目位于云南腾冲一座依山而建、面向日出的村落。村子隔着一片稻田与著名的和顺古镇遥遥相望,视野开阔,环境清幽,常年气候宜人。业主选中此地为家人朋友建造一座度假院落。项目初期,我们和业主一起走访基地附近村落,研究传统民居布局和常用建造材料,在当地寻找合适的施工方,并沟通可行的建造技术。即使做了大量前期准备,后期仍然困难重重,遭遇了概念方案做完却由于不可抗力更换基地全部推倒重来, 以及施工图出完又收到古镇风貌管理更加严格的条例不得不更换结构体系… 业主和我们一次次往返北京与腾冲之间,面对诸多前途未卜的困难,犹如升级打怪,最终坚持了下来。因此业主给项目取名叁柒廿壹院子,意思是不管三七二十一也要把房子盖起来。
基地基地位于朝向东南的半山坡上,整个场地高差有1.5米,两侧分别毗邻一片杉树林和邻居住宅。基地形状不规则且进深狭长, 尽管面向一片开阔的稻田,对面是依山而建的和顺古镇,但景观面非常狭窄。业主希望在有限的400多平米的基地面积以及8.8m的限高内设置尽量多的对外客房、公共空间以及自住生活区。由于项目位于和顺古镇的风貌保护范围内,建筑须遵从当地传统建筑风貌,主体结构为木结构,屋面为传统灰瓦坡屋面,墙面色彩白色或灰色。
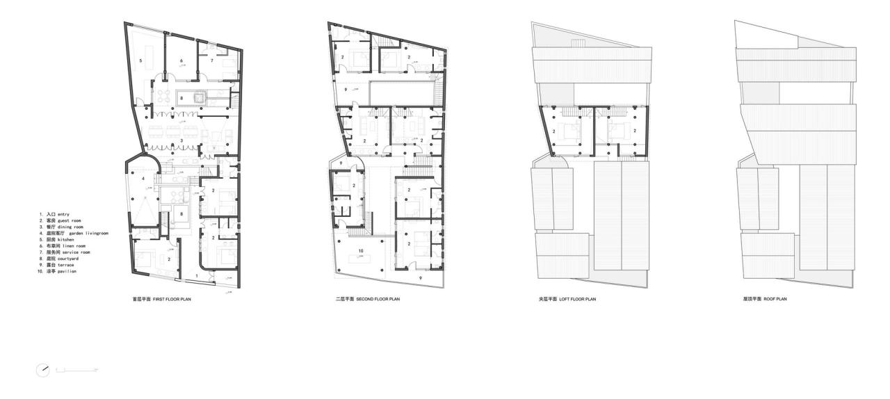
策略为了使更多房间看到古镇景观,我们把有坡度的基地处理为两个有高差的台地,由南向北,通过错落的台阶将不同高度的景观平台联系起来。 基地过长的进深空间被处理成前后两个院子,前院为对外的民宿,后院为主人的生活区。餐厅和沙龙空间位于前后院之间,能向两个院子完全打开,通透的玻璃门也保证了前后院的视线联系。餐厅上层的两个房间利用坡屋面的屋脊高度做了夹层,作为卧室空间。由于这两个房间单元位于高起的台地上,客人躺在床上时视线能越过前院被降低高度的灰瓦屋面看到远处的和顺古镇。
布局和顺民居的常规做法是U型或者L型外廊式布局。一层房间面对内院,二层房间由朝向院子的半室外走廊串联起来。这样的布局形成了简单直接的交通流线,弊端是二层的房间开窗开门全都朝向了公共的外廊,导致房间私密性差,无景观面,空间单调缺少趣味性。我们希望在诸多条件限制下,通过空间组织创造一个非模式化体验丰富的民宿,试图在有限空间内营造出村落的感觉,把建筑体量分解为6个小独栋单元,单元之间插入楼梯和小平台,每个房间到公区的路径都不尽相同。充分利用了有限的景观面和场地高差,让大多数房间拥有古镇景观,另外独栋单元围合出来的两个院子,也为内向的房间提供了庭园景观。
体验因为腾冲四季宜人的气候条件和当地人以茶代水的生活习惯,有风景的室外空间往往最受欢迎。我们希望客人不只是在客房里呆着,而是能体会到院子里每个角落的乐趣,所以营造了尽可能多的室外公共空间,并最大化利用所有景观资源。 错落的景观平台消解了基地内部1.5米的高差,村落化的空间组织方式、松散的体量布局造就了一些模糊不确定的空间角落,楼梯和平台灵活分布在了这些透气的地方,加上一些仔细安排的半室外空间、檐下空间、景观通廊,让使用者在建筑中游走的体验更加丰富,并总能找到在不同天气条件下都能舒服呆着的地方。同时视线也会随着高度和位置的改变一直变化,总能让人发现一些乍看不知道如何到达的角落,从体验感上放大了空间,增加了趣味性。
室内
由于建筑体量是由整体操作腾挪各个单元独栋而得出,每个房间的景观和尺寸形状都是唯一的,特点也各不相同,有的拥有独立小阳台,有的直通景观露台,有的拥有庭院景观,有的享有古镇全景,有的在最高处是LOFT空间。针对每个房间不同的景观特点,开间尺寸以及结构空间关系,设计了规则相近但细节不同的室内定制家具,使每一间的居住体验都有所不同且都拥有观景喝茶的窗前塌。
材料室外地面材料是腾冲当地最常用的火山石,我们选用了加工痕迹最少的糙面块材,通过小尺寸的砖块呈现出简洁又丰富的庭院肌理。建筑墙面采用白色稻草泥涂料,在满足古镇风貌要求的同时与庭院的灰色拉开距离,亦能拥有更多细节及质朴的粗糙质感。室内材料延续室外选材朴素风格的同时兼顾舒适,艺术白水泥墙面在灯光映照下会呈现出微妙精致的光泽感,灰色水磨石地面与户外粗糙的灰色火山石铺地呼应。在建造成本,施工技术及材料选择有限的情况下,我们希望这座院子看起来既像从本地生长出来具有符合乡村淳朴气质的美感,又能适应现代生活的审美和需求。
项目图纸
△基地示意图
△平面图
△剖面图
△分析图
项目信息
建筑师:亼建筑
面积 :578m²
项目年份 :2022
摄影师 :王洪跃
主创建筑师 :鲁雯泋
设计团队 :鲁雯泋,李洁苒
施工方 :腾冲正扬装饰
地点 :中国,腾冲

BIM建筑网







































