由 Tate + Co Architects 设计的约克圣约翰大学(York St John University)创意中心是一座低能耗建筑,它将为这所大学的音乐及计算机科学研究打造一个永久的新家,并在其中构筑专用于表演、创意写作和媒体制作等的空间。
约克圣约翰大学创意中心的设计由三个主要概念生成。第一个主要概念为“可持续设计”:无论是运营或隐含碳,创意中心都是一栋真正的可持续建筑,并有着坚固的木结构框架及简单的微气候环境控制系统。第二个主要概念为“枢纽空间建造”:主中庭空间为建筑中所有元素的链接纽带,并蕴含着高等教育学府中为跨学科合作所打造的“第三空间”的愿景。第三个概念则为“肌理融合”:创意中心充分利用了其靠近约克大教堂的地理位置优势,并让大学可以融入周边城市的历史遗产肌理中。人们可以在整个中庭、演奏大厅、以及至关重要的听音室中,享受在精心设计的建筑框架中的大教堂景色,由此将令人惊叹的历史遗址风景如画的景色带入建筑之内。
建筑师在约克圣约翰大学创意中心的设计中采用了“肌理优先”的设计方式,并采用了如胶合木及交错层压木材等大量低碳建材,由此在使用大量木材的同时,创造不同肌理、质感的内部空间。同时,项目还采用了被动式设计原则,从而在可持续设计上取得了 BREEAM 出色(Excellent)级别的评级。此外,建筑师与环境设计顾问 Atelier Ten 合作,他们在项目中采用了三层玻璃、打造气密建筑、提供如可开启窗户等简易的操作系统、并在教室运用由机械和自然通风共同组成的混合通风系统,由此让创意中心可以取得生态建筑的认证。
约克圣约翰大学创意中心的学生社区中心及协同工作环境则完美地实践了三个主要设计概念,这一区域包含了 2000 平方米的灵活教学空间,并可以根据学生的需求及约克圣约翰大学动态教学的未来发展以进行自由的调整。此外,这一区域没有柱子,并有着大量的宽敞开放空间,这些开放空间可以被进一步改造为一个个蜂窝式分区,由此让人们可以根据自己的需求自由地探索其空间“潜力”。创意中心的核心是一个可以容纳 200 个座位的礼堂,这一空间可以举办学生的现场表演、社区活动及高规格会议。同时,礼堂外部由预制木材包裹,由此呼应了校园旁约克座堂高耸狭窄的壁龛造型。
创意中心的中庭则为整个校园乃至周边社区的“心脏”:这一区域有着 550 平方米的小组学习及休憩空间,同时它还与教学区与礼堂连接,以此促进着创新学科间的交叉融合。此外,玻璃与胶合木材打造的屋顶让自然光可以进入建筑物内。并且,中庭既是展示空间,也是自由教学空间及剧院门厅,其中央有着一个独具特色的新筑楼梯,由此在联通各个楼层的同时,楼梯也可以为非正式讲座及表演提供座位。
创意中心通过材料的运用以及对与周边景观关系的细致考量与自然环境相连接。建筑整体主要使用木材建造,从而营造了温暖且欢迎的友好氛围。同时,立面上的大窗户也让光线和空气可以流入其中的不同空间。全新的创意中心与其临近的设计中心之间则由一系列相同的小径连接,这些小径也通往校园内一条易于导向的步行街。此外,建筑师和景观设计师为市长的“人行校园”打造了以景观为主导的规划,并让其作为创意中心设计过程的一部分,以此确保校园可以真正地改善学生的步行体验。
项目图纸
△基地示意图
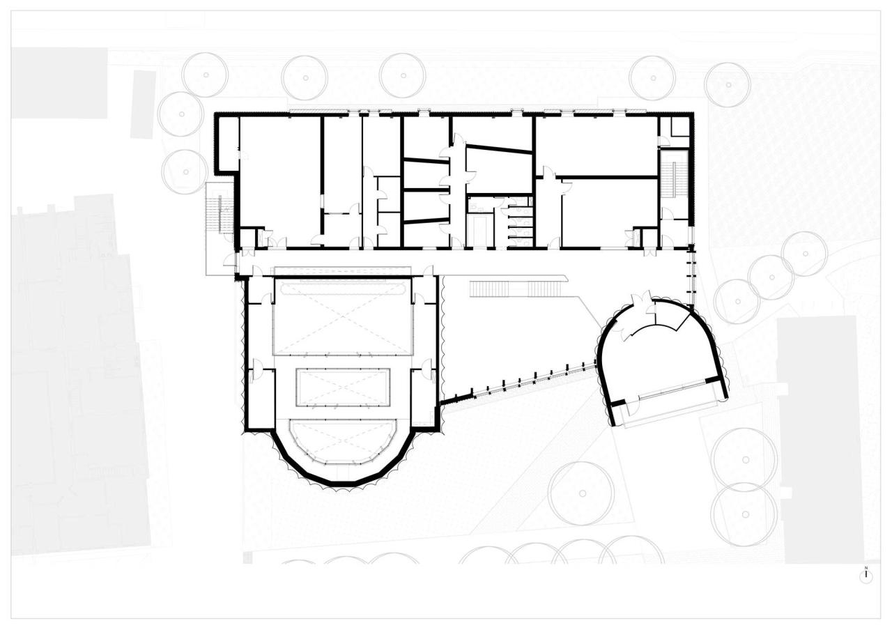
△一层平面图
△二层平面图
△三层平面图
△四层平面图
△剖面图
△剖面图
△立面图
△立面图
△立面图
△立面图
△细节大样图
项目信息
面积 :3014m²
项目年份 :2022
摄影师 :Hufton+Crow
厂家 : Interface,Altro,AutoDesk,British Gypsum,Forbo Flooring,Mosa Tiles,Russwood,Shadbolt International,Silent Gliss,Solus Ceramics,Velfac,Whitesales Rooflights
项目建筑师 :Andrew Baker-Falkner
设计团队 :Eduardo Andreu González, Rob Baron, Amir Daryoushnezhad, Finbarr Duerden, Caroline Dunham, Rory Harmer, Jolene Hor, Qaisy Jaslenda, Iaia Loppi, Amber McLaren, Simon Munashe Dendere, Laurence Pinn, Ed Rawle, Mohammed Syafiq B Hassan Jubri, Tristan Searight, Jerry Tate
胶合木及交错层压木材 :Glulam Solutions
木制覆层 :BCL Timber
业主 :约克圣约翰大学
项目经理及总协调 :MCAG RLF
M&E 工程师 :Atelier Ten
结构工程师 :Atelier One
声学顾问 :Sound Space Vision
可达性顾问 :Sensory Trust
景观建筑师 :Colour
规划顾问 :McKenzie Town Planning
总承包商 :Kier

BIM建筑网








































