在梦工场建成后的18年间,其周边城市环境经历了骤变。需要改造的不是建筑单体,是与建筑单体接驳的整个城市空间。
改造的动作从剖面开始,原本最低点仅4m净高的看台空间,已无法满足一座当代剧场对声光电的专业需求。我们将城市界面刻画为13米高的城市敞廊,在广场和建筑之间,建立起一组舞台与看台般的,城市空间的观演关系,也在树木掩映的景观中,刻画着建筑与“自然”的关联。
13米高的公共敞廊,作为组织剧场进入的必要流线,也是城市空间的延伸:敞廊与两侧大台阶贯通,连接至广场,在城市中塑造出立体的环形公共流线,也让建筑在与城市公共资源的整合中,放大了自身的价值。
建筑语言的发展,顺应着体量上轻下重的基本关系:下部基座轮廓如碗体,不做尺度刻画,让体量“山石”般的性格被放大;而上部敞廊尺度精分,用“人工”的准确,与基座的世界护为对照。整体关系犹如山体上的廊亭,成为这座热带城市中的风景。
梦工场的空间,可以理解为一组地形关系中的“挖空”与“覆盖”。从外部广场至内部看台的行进过程中,场地设计由外至内贯穿,体验始终被地形的线索牵引,模糊了场地与建筑惯常的区分,顺应原建筑强烈的性格,塑造出一系列与“山石”有关的,连续的空间经验。
△效果图
△效果图
△效果图
△效果图
△效果图
△效果图
△施工过程图
△施工过程图
△施工过程图
△施工过程图
项目图纸
△主楼与配楼关系工作模型
△城市敞廊工作模型
△楼梯转向后的界面工作模型
△敞廊城市景观工作模型
△基座与敞廊工作模型
△敞廊城市景观工作模型
△长廊与物体工作模型
△敞廊与植被工作模型
△曲线山墙、碗体、配楼(credit:郭靖)
△长廊与社区街道工作模型
△梦工场与周边城市密度
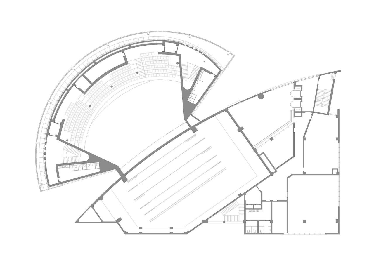
△底层平面图(配楼内部非本次改造区域)
△二层平面图
△三层平面图
△夹层平面图
△攀登空间系列
△金属幕墙轮廓的收分
△剖面草图
△改造前剖面
△剖面图
△敞廊墙身
项目信息
建筑设计 : HIL Architects
面积: 7300 m²
项目年份: 2022
摄影师:郭靖
厂家: Guangzhaolong Stainless-Steel LLC
主创建筑师 : 于岛(大屿建筑),李博,程博(岚建筑)
设计团队 : 叶力舟,罗必争,刘培烨,李然,李妍卓,郭佳鑫,于淼,杜佳霖,贺谌,刘智伟,李张君,赵莹,邹丽莎,刘璇,孙中维,杨锦涛,刘慧东,刘慧婷,李想
照明顾问 : 庞磊
委托方 : 福田文体中心
结构设计 : 唐山市规划建筑设计研究院
施工方 : 梅州市建筑工程有限公司
声学顾问 : 深圳远鹏装饰集团有限公司
地点:中国,深圳


BIM建筑网



















































