△ 项目鸟瞰
关于环境
校园用地四方四正,一期已用其中3/4(25558㎡),5年后校方取得剩下西北角1/4(9091㎡),是为二期用地。用地周围均为校园建筑,北侧有市政道路,西侧有小河道。与南侧一期教学部分需距离25米以上,与东侧宿舍楼需保持适当间距。
△总图
△西南向鸟瞰
关于需求
一期已建一幢教学综合体,两幢宿舍楼。有36个班,229间宿舍等功能,建筑面积共30362㎡。二期需增加12个班,140间宿舍及部分餐厅、图书馆、专业教室等功能,共18627㎡。校方特别提出,希望最大可能地增加室外活动空间,这一需求成为设计的初始动机。学校开学以后,孩子们睡眠之外一多半的时间在建筑师等为其营建的校园环境中度过,因此在倡导创新教育的当代,营造丰富、自由、多元、开放的学习场所成为校园建筑空间设计的主要出发点。
△西北向鸟瞰
关于逻辑
设计以一个简洁明了的螺旋体为形体逻辑。螺心由地面开始展开的同时,逐层升至6层,给每层带来大面积的屋顶活动空间。也由于上部不断缩减的体量以及下部底层架空系统的置入,从而避免了围合内部空间的压抑封闭之感。教学部分一定角度的偏转这一个动作完成了在南侧教学楼间距、北侧机动车进出、西侧与一期餐厅连接等三个方向上对场地条件的积极应对。
△形体分析
关于多路径
校园建筑,尤其是小学校园,由于其管理封闭性,因此校内各单体建筑及建筑之间为时空连续的重要手段之多路径提供了绝佳的场所。多路径的组织设置,有利于避免校园形成专制、单调的时空环境。丰富多维的空间符合国家倡导的创新教育理念。
△东南向实景
△公共楼梯
△公共楼梯仰视
△内院
△内院台阶
△内院鸟瞰
△活动平台
△活动平台阶梯
关于肌理化
肌理化开窗是当代打破立面理性刻板的常用手法,通过窗墙的随机交织形成立面图案肌理。在满足采光通风的同时,也与丰富多彩的教学建筑风格相契合。
△宿舍楼架空
△宿舍楼南立面
△餐厅
△餐厅彩釉玻璃
△东面细部
△楼梯细部
总结
雨果·哈灵说:“我们要对事物进行一番研究,让事物自己发现自身的形象。”建筑总是诞生于需求。一个特定的需求常常成为设计的初始动机,而由此引发的一个形体组织逻辑与之相契合,同时能够完美的回应场地条件上的各个因素,这样的结果是本设计所追求的。
△南立面夜景
△东北向鸟瞰
△东南向鸟瞰夜景
设计图纸
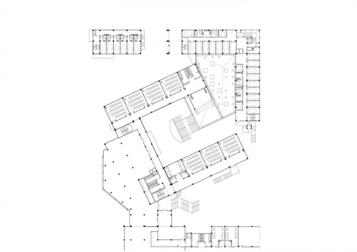
△一层平面图
△二层平面图
△四层平面图
△东立面图
△北立面图
△1-1剖立面图
项目信息
项目名称:乐清市育英寄宿学校小学部二期工程
项目类型:建筑
项目地点:乐清市城东街道翔云东路201号
设计单位:中国美术学院风景建筑设计研究总院
事务所网站:http://www.caaladi.com
主创建筑师:侍可
设计团队:侍可 戴建华 刁立坤 刘赛群 吴凡王睿 陈聪 邵艳艳 张志彬 葛晓梅朱三利 应浙宣 薛晓迪 陈平 宋捷 余家庆 赵天龙
业主:乐清市育英寄宿学校
造价:9000万元
建成状态:建成
设计时间:2017年09月-2018年12月
建设时间:2018年12月-2020年08月
用地面积:9091平方米
建筑面积:18627平方米
摄影师:奥观摄影

BIM建筑网






























