深藏在上海市中心的弄堂之内,Whisper Bar以富有雕塑性的姿态营造了一个集酒吧、咖啡、品鉴、活动功能的综合性场地。在此项目中,Digitects不仅以设计师的身份介入,也同样是酒吧股东之一。其角色的增加,带来的变化不仅是在初期更加紧密地结合设计与商业策略,也是在有限的预算内更加极致地落实设计细节。
△ 入口视角
整体空间分为地上与地下两部分:地上轻快的酒吧展现出年轻、有艺术性的氛围;相反地,地下私人俱乐部的态度更为私密与严肃。作为顾客感官与情绪的铺垫,两层空间由一个神秘的隐藏门分开,然后通过一个幽暗的、仪式感的楼梯向地下延伸。
△ 隐藏门后的楼梯
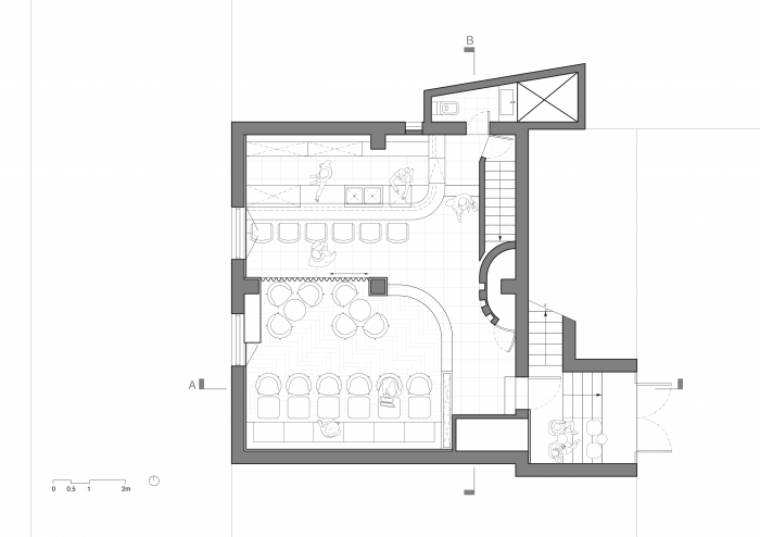
△ 首层平面图
△ 地下室平面图
受到达达主义的启发,通过有机而又克制生长的原有结构看似有些荒诞,感觉上“不像是属于这个空间的”。其突兀的造型增强了空间的戏剧感,也创造了一个独一无二的饮酒气氛。其几何构造的围合姿态,加上金属帘半通透的阻隔,使得入座的顾客感到更加的私密与舒适。
△ 座位区
△ 吧台区
一进门后呈现的是无限镜形式的酒柜与玄关。其中悬挂的酒瓶搭配彩色的灯光,表现出一种重复、梦幻的视觉体验。酒柜内的玻璃经过特殊处理,既保证了入口处的效果,也对室内座位的影响降低到最小。吧台下部的灯光从顶部射入透明亚克力管内,相同的色彩搭配强化了这种轻松的氛围。
△ 入口酒展示柜
△ 入口酒展示柜
来到地下后,会先到达等待区。功能性上等待区连接着两个包厢、厕所与储藏室,是地下的核心空间。其中可移动的酒柜与圆桌提供了酒品选择与品鉴的空间。与楼上相似,整面墙面采用了镜子,增加了空间的复杂性,成为了一个顾客私下聊天的理想空间。
△ 等待区
△ 地下室包厢入口处
大包厢用红丝绒布帘分隔成了三部分,也可以在需要的时候进行合并,增加了空间的灵活性。同时,墙体维持了拆除工作后的原始面貌,创造出一种粗粝的地下室形象。一米高的棕红色皮质墙裙适当的增加了视觉与触觉的柔软度。彩色玻璃和雕塑质感的装饰大大增强了地下室的仪式感,营造出一种神秘与尊贵的消费体验。
△ 可调节的包厢空间
△ 首层细节
△ 首层细节
△ 剖面A
△ 剖面B
项目信息
设计公司:低态建筑
设计团队:丁洋洋,顾涛
联系邮箱:[email protected]
地址:陕西南路,上海,中国
建筑面积:120平米
建成时间:2020年9月
摄影:戴长逸

BIM建筑网

















