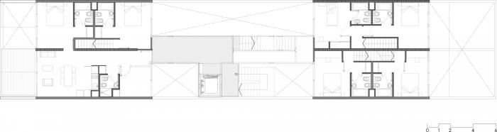
这是一个小规模、低密度的集合住宅,它建在一块位于布宜诺斯艾利斯市西北部的乌尔基萨行政区的长43.30米、宽8.66米的场地之上。这个集合住宅中包括了两个用裸露混凝土砌块和 Cerbelu 型预制板建造的体量,每个体量中各分配出四层安置多户住宅,每户住宅都有两层并有私人露台。
地下室放置了一个液压电梯设备机房、电表和清洁水箱。户外延伸空间和交通区域是用独立金属结构建造,这个金属结构也进而推进了这个集合住宅临街和背街两个外立面的设计,这两个外立面上设置了用电焊金属网围起和用木板铺设地面的延伸露台。露台很深并且每层露台的位置交错重叠,就是为了和外部光线以及场地上及周围已有的树木建立起最好的关系,这些树木为这个基本上没有高层建筑物的街区建立起了大面积的树荫。
设计图纸
△ 平面图
△ 平面图
△ 平面图
△ 平面图
△ 平面图
△ 平面图
△ 横向剖面
△ 纵向剖面
项目信息
项目类型:集合住宅,居住建筑
项目地点:DPR,阿根廷
建筑事务所:Oscar Fuentes Arquitectos
面积:1150m²
项目年份:2019
摄影师:Luis Barandiarán
厂家:Ascensores Company,AutoDesk,BGH,CERBELU,Cerámica Alberdi,Company,DHL,Daiba,Domec,Durlock,Grifería FV,Grundfos,Jarroc Construcciones,Marmoles Lincoln,Minuto,Sanitarios Banchero,Superblok,Sur ingeniería,Tienda de Luz,ferrum

BIM建筑网
























