相地
项目基地位于福州市晋安区寿山乡前洋村,被誉为福州市的后花园,从市区开车穿过国家森林公园山腰,40分钟便可抵达基地。美丽乡村前洋村,目前以龙晶葡萄园为核心的新型农业旅游观光一体化的休闲村庄。但是村里农产业单一,农田耕地利用不充分。
本次设计范围为两行山丘间的10栋宅子改造,以及山丘间的带状谷地。基地现状的建筑背山面山,近可细观一洼谷地,远可环望连绵不断的平远山。顺着宅前小道可踱步于可河,穿梭龙晶葡萄园和田野,不失为当代的世外桃源。
现场踏勘发现,山涧洼地已是荒芜的状态,房屋屋主已全家迁入福州市区生活,房子历史最长不过50年,砖墙瓦顶,是前洋村的建筑基调。灰瓦屋顶,砖柱砖墙和木梁木楼板组合结构,砖有红砖灰砖,结构由于当时建造的粗糙,再加上这几年的荒废,已无法直接利用。还有部分砖混结构平屋顶,灰色涂料粉刷,这类建筑是原建筑风貌的破坏者。
三问
中国的农村千千万,每个村庄都有自己的特征,有特色也有短板。抓住村庄的命脉,找对村民生产生活的路子,是乡村建设的基础;抓住村庄的生活文化特征,这样建造的村庄,村民才会有归属感。
前洋村的空置的宅子因什么能复活?
以大中年妇女为主的主流力量该如何带动村庄的面貌?
建构什么样的村宅?
农家基调
前洋村目前,龙晶葡萄园是顶梁柱农产业。据若干村民口述,当前每年七八月葡萄采摘的季节人流较大,其他月份极为萧条,龙晶葡萄园的种植管理也仅仅消耗村庄一小部分劳动力而已。农产业发展应承前洋村美丽乡村的定位,丰富农产业种类,再规划花田、蔬果园,补前洋村春夏秋冬四时农产品,解除现在单一葡萄园农产品发展的困境。调动前洋村巾帼妇女为主的主要生产力,产业先行,以农产业为基础,农业发展好了,村民的经济基础才会稳固,产业丰富起来,则能更好的应对市场起伏的冲击。
农产业延伸
在农产业为基础发展特色生态景观,发展休闲农家体验,发展民宿等业态,打造造美丽乡村特色。民宿策划经营,考虑由产业带来的休闲体验需求,例如自助(BIM设计)厨房、田园采摘、露天烧烤等,同时挖掘在地文化特色,如养蜂、酿酒等,与农产业葡萄园、花田、蔬果园融为一体,打造出属于前洋村自己的品牌。
一种属于前洋村的现代性建构
前洋村的建筑该是什么样的,是本设计探讨的核心。村子四面平远山丘连绵不绝,龙晶葡萄园焕发着村庄的生命力。建筑设计以平远山形态为意向,以葡萄藤为建构原型。夯土墙、砖墙、木构、瓦顶,是延续前洋村的命脉。龙晶葡萄园的葡萄藤在前洋村已然深深烙印在村民的心里,将葡萄藤作为建构原型融入生活空间里,无疑是接地气,有归属感的建造。并且,村里水泥工木匠完全可以完成这样的建造。
改造范围内的10栋老宅子,建筑落架后的红砖、青砖、青瓦,重新利用,留存印记。回收的青砖、红砖强度不太好,结合“葡萄藤”木构架,设计一体的建构单元,“藤爿”;空间单元将由此建构单元衍生,屋顶用回收的青瓦,在藤爿构架上铺成的瓦片屋顶,延绵伸展,如同环绕前洋村的平远山丘。
▲ 一种属于前洋村生产生活的建构情境
改造后的村宅,以前洋村村民生活功能为基础,村民经营葡萄园、花田、蔬果园,凭借前洋村得天独厚的区位优势,产业营销,打造农产业链。同时可辐射市区市民休闲体验,衍生农家乐、民宿等产业。融于生产生活的农村建筑,“藤爿”核心建构,延续昔日的夯土墙,再利用的老砖,营造出一种属于前洋村的现代性建构。
▲ 庭院
▲ 餐厅
▲(BIM工作) 卧室
设计图纸:
▲ 一层平面图
▲ 二层平面图&局部三层平面
▲ 立面&剖面
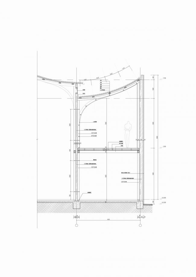
▲ “藤爿”建造详图
项目信息:
设计团队:MV建筑工作室
建筑师:吴龙鑫庄旭冠
项目地点:福州市晋安区寿山乡前洋村
项目范围:328-340号宅子,带状农田
建筑面积:2950平方米
项目背景:2018海峡两岸“创意点亮乡村”入围奖

BIM建筑网




















