La Grange Rouge度假屋设计位于奥弗涅森林景观深处的山顶上,在多姆山(Puy de Dôme)古老的火山群中提供了一个独特的休闲场所。这座谷仓的主人是一个在附近山村拥有 400 多年历史的家族,经过精心改造后,这里已成为举办社交活动或个人休闲的理想场所。
La Grange Rouge 的设计就像一个戏剧舞台,在这里,每一天都是大自然美丽壮观表演的高潮。房子坐落在山顶上,可以欣赏到令人惊叹的全景,尤其是在日落时分,西边的山谷会呈现出金红色的天空,令人陶醉。房屋结构保留了谷仓原有的钢架,并涂上了让人联想到铸铁的浓郁深红色。这种独特的色调灵感来自夕阳的暖色调,渗透到整个房屋中,在郁郁葱葱的绿色景观中营造出一种闪烁的温暖。
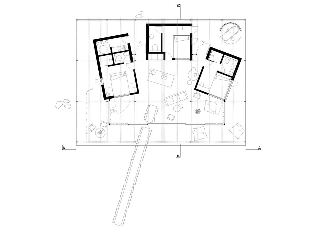
在宽阔的屋顶下,房子里有三间卧室,每间都设计成独立的小房子。这些私人空间为客人提供了一个私人庇护所,每个房间的朝向都能让客人从舒适的床上欣赏到山谷的壮丽景色。在这些私密空间之间有一个公共区域,类似于房屋之间的广场,完美地衬托出照亮西部地平线的壮观景色。厨房形成了第四个围墙,增加了房屋的公共布局。餐桌向无边的风景延伸,邀请客人一边用餐,一边沉浸在迷人的景色中。
La Grange Rouge 别具一格的特色之一是隐藏在屋檐下的室外浴缸。在这里,客人可以沉浸在宁静的沐浴体验中,沐浴在清晨的阳光下,或享受冬日清爽的空气。无论在什么季节,这种仪式都会成为与周围自然环境融为一体的特殊时刻。
拉格朗日红房子周围的场地已经恢复到野外的自然状态,草地重新焕发出桀骜不驯的美丽。散落的花园家具小岛成为宾客们的小憩之地,为欣赏克莱蒙费朗山谷的广阔景色提供了新的视角和角度。房屋鲜艳的红色调与郁郁葱葱的绿色景观交相辉映,形成了鲜明的视觉对比,提升了两者的美感。
La Grangege Rouge 是葱郁环境中隐藏的红色宝石,这里的每一个细节都经过精心雕琢,以彰显当地的自然美景和文化遗产。它为那些追求宁静、壮丽景色以及与奥弗涅永恒景观深度融合的人们提供了一个完美的避世之所。

BIM建筑网










































