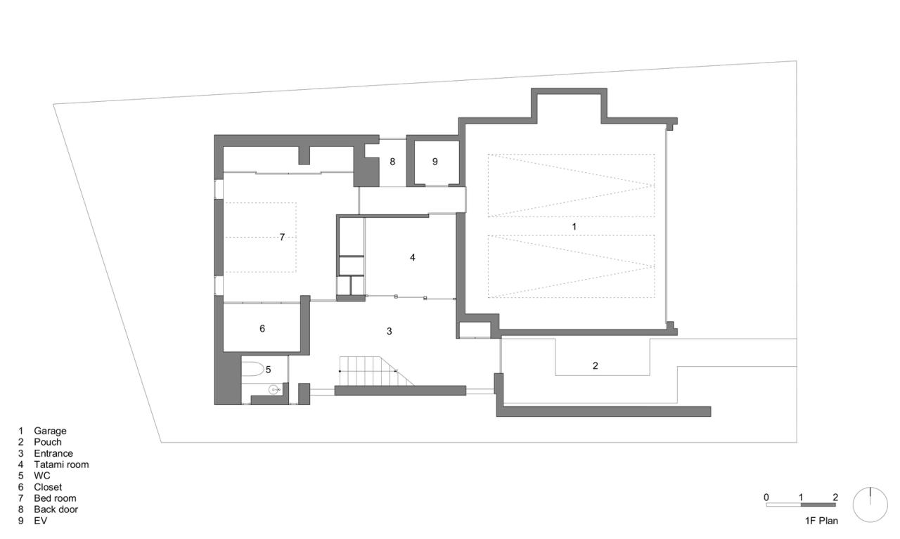
该日式住宅设计场地位于大阪的一个城市住宅区。场地周边建筑密集,后方的地块坐落在一个高挡土墙之上。客户要求设计一座两代同堂的家庭住宅,既能确保室内隐私,又要有绿植,使其与城市环境相融合。我们希望设计出一个宽敞的空间,既能引入充足光线,又能避开周边的视线干扰,同时还考虑到场地周边未来重建的可能性。
我们旨在通过利用建筑缝隙打造狭缝和其他开口,营造出视觉上的延伸感和深度,同时使建筑与周围环境相对隔离,让空间看起来仿佛延伸到了视野之外。透过这些开口,光线在玻璃、混凝土和喷涂表面反射,凸显出它们不同的质感和色彩,让人能够感受到材料之间的差异。
建筑被划分为多个体量,采用木材、混凝土和灰泥等不同材料进行饰面处理,这些体量相互错置排列,以便光线和微风能够透过它们之间的缝隙进入室内。沿着绿树成荫的通道进入建筑后,首先到达的是从一楼延伸至三楼的中庭,然后可以沿着从钢筋混凝土墙悬挑而出的楼梯向上走。
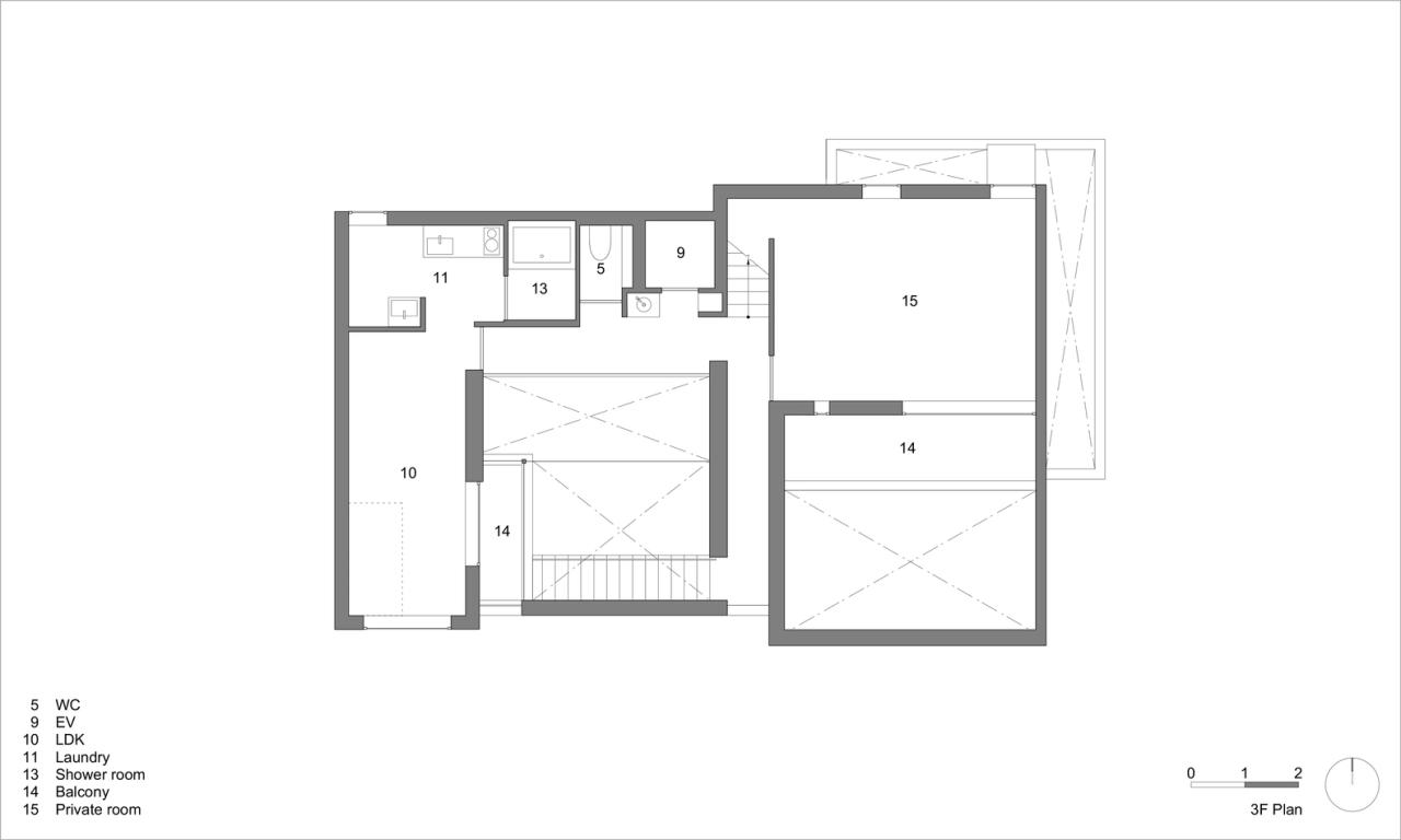
年轻一代的家庭居住在一楼和二楼,一楼设有卧室和客房,二楼则是 LDK(客厅 / 餐厅 / 厨房)以及浴室和洗手间。年长一代的家庭居住在三楼,这里有一间私人房间、LDK 以及浴室和洗手间。
中庭的楼梯从厨房和餐厅看过去,就像是一个室外楼梯,传达出一种自由开阔的感觉。通道处有一个露天中庭,一直延伸到三楼,从 LDK 可以看到通道两旁的高大树木。白天,自然光反射进建筑内部。夜晚,建筑内的灯光在各种材料表面反射并透出,让路人能够想象到建筑内部的空间深度。
微信公众号:xuebim
关注建筑行业BIM发展、研究建筑新技术,汇集建筑前沿信息!
← 微信扫一扫,关注我们+

BIM建筑网
































