1.项目概况烟台城市科技学院位于中国山东省烟台市福山区。项目用地近似梯形,东西长约 600 米,南北长约 400 米。基地南侧紧邻已建成的一期工程,规划用地面积共 351 亩,与一期 150 亩用地共同组建 501 亩用地规模的烟台城市科技学院。场地内现有二期-1 已建成的建筑五栋,包括位于中心位置的图书馆,以及两栋教学楼,一栋体育馆和一栋宿舍楼。建筑面积共约 60000 平方米。二期-2 在实施前首先对 2 期的校园总体规划做出了调整。其主要任务是在二期 351 亩的用地范围内,在已建成的五栋建筑和部分路网的基础上,对原规划方案进行总体性的调整,使其转变为以学生为主导的,开放式的校园环境。以体现学校的“以学生为本、无处不学习、无处不创新”的教育新理念。二期-2 的全部建筑将分阶段实施,本阶段共完工 6 栋主体建筑,包括:食堂一栋,宿舍四栋以及马术馆一栋。总建筑面积约 88000 平方米,其中地上建筑面积约 80000 平方米。
2.对原规划的调整:校园规划以学生为中心在知识共享与信息开放的当代社会,大学的功能与社会角色正在经历剧烈地转型:从知识传授到知识生产,从集中式学术传承到分布式协同创新的转型。校园的转型——从象牙塔到“知识超市”;学生的转型——从学徒到知识生产者;管理的转型——从以教师为中心到以学生为中心。
流动与开放的信息网络使得图书馆不再具有无可替代的知识传授的核心功能,而无处不在的公共空间则将学习与生活、工作与休闲有机地整合在一起。打破了学科与专业的壁垒,使得协同与交叉的知识创新成为大学的核心功能。因此对原规划的调整将从以图书馆为中心的十字轴线集中式转变为多中心、社群式的开放校园空间。
3.设计策略:像设计城市一样设计大学校园新方案同时注重将生活、教育与校园规划相结合。大学校园是学生进入社会前的最重要的人生阶段。对于大多数学生都是从家庭式内向型生活向城市外向型生活转变的过渡阶段。大学校园具有引导学生如何成为一名有责任心的合格市民的社会功能。因此,要像设计城市一样设计大学校园成为该规划的首要策略。原规划方案以图书馆为校园的几何中心,最宽的主路呈十字轴线贯穿校园,该方案是以机动车优先为导向的。新版总图流线保留原有校园主要入口位置不变的前提下,增加了慢行系统,更加强调校园内的步行体验,有利于机动车降速和提高校园生活品质。整体流线实现沿校园围墙形成环线,内部以步行为主的一定程度上的人车分流。
4.空间规划:“多中心、社群式”的开放街区新的校园规划采用“多中心、社群式”的开放街区来组织建筑功能布局,营造“开放、绿色、共享、活力”的校园生活。构成街区的基本建筑单元的形态为口字形,其中围合的内院空间与外部空间相连接,成为校园开放空间的有机组成部分。即使是封闭式管理的学生宿舍,其内院通过开放的门厅仍然可以自由出入。整个校园的空间规划打破了传统的内部封闭空间与外部开放空间的界定,而是被划分为开放式交往空间与封闭式功能空间两大部分。封闭式功能空间保证了差异性的功能,开放式交往空间则将这些差异性的功能空间有机地组成了社群。分布在校园内的广场、街道与花园等构成了“城市”街区的多个中心,而每一栋建筑的开放内院,则构成了形式类似而内容多样的社区空间。
校园西南侧的 4 栋宿舍楼与已建成图书馆及体育馆共同构成了“活力街区”。校园北侧的 2 栋宿舍楼与食堂以及原有的一栋宿舍共同构成“校园农场街区”。校园东北侧的两栋宿舍与 5 栋教学、实训、办公楼一级马术馆和已有的一栋教学楼共同组成了“校园广场街区”。校园东南侧的两栋教学楼与现有的一栋教学楼共同构成了“林荫大道街区”,并成为 2 期连接 1 期的重要空间节点。每个街区都拥有核心的公共空间以及多样性的功能,打破了单一目标的功能分区,促进了不同学院与专业之间的交流与协同,图书馆、教学楼、体育馆、马术馆与校园农场将共同构成大学生活教育的重要载体。
5.食堂:校园生活发生器新设计的食堂紧邻校园北门,地上 4 层,地下 1 层,地上建筑面积约 14100 平方米。一组连续的楼梯内嵌在南立面上并延申到东立面之上,将首层至 4 层连接在了一起。这个空间成为了校园开放式交往空间向食堂立方体之中内嵌的部分。这个空间不仅仅作为楼梯来使用,而是一组来自城市公共空间的不同原型所构成:包括:连廊,位于二层的小广场,位于三层的内院和位于四层的屋顶花园。因此这个立方体形态的食堂是由开放式交往空间与封闭式功能空间两个部分组成。封闭式功能空间为全校数千名学生提供早、中、晚一日三餐的服务。而开放式交往空间则为校园社群生活的形成提供了重要的空间。这组多样的空间包括了室内空间、室外空间与半室外空间,它们连接在一起,形成了城市外向型的生活空间。在一天的不同时段,这里将被充分利用,可以举办开放性的讲座、跳蚤市场、社团活动、生日派对,课程展览、项目推介,甚至是舞会与露天电影等。食堂的功能超越了一日三餐的基本属性,而成为了一个激发公共交往,促进面对面交流的校园生活发生器。在建筑语言上,建筑整体通过空间的切割,剖开局部来呈现空间的物质性。留有手工感的外墙涂料所覆盖的体积被切开,被切开的内部表皮覆盖有铝板,呈现出去物质性的平滑空间。这里的功能就是公共交往。
6.景观设计:开放街区 & 自由流畅的校园总体景观概念体现和加强了新的校园规划“多中心、社群式”的开放街区的总体理念。二期-2 的景观设计是在总体校园景观规划基础上进行深化的,既把本期作为总体校园景观的一部分,也充分考虑本期项目范围的景观空间功能和氛围。
从连接北门至二期-1 已建成的图书馆的大道被设计成一条宽阔华丽的林荫大道,与东南侧林荫大道街区形成景观呼应,与东侧入口进入的林荫大道一起共同形成穿行校园内的林荫大道景观,同时也是连接和通往其他街区的公共空间的主要道路。为了校园内部区域步行优先和更流畅的整体校园环境氛围,沿着围墙的道路作为服务于相对较快车行速度的道路,在其靠围墙一侧根据空间条件设置停车位,既方便停车也利于减少校园部内部道路的车流,因此在这条环形道路上两侧设计种植行道树,营造一条沿着校园围墙的环形林荫车行道,既有辨识性也有舒适性。而校园内部街区之间的道路则完全相反,被考虑成整个开放街区群的一部分,服务于步行优先和自由流畅的校园景观氛围,因此这些道路被设计成尺度更宜人的单行车道,不设置成行的行道树,而是把整个校园内部各街区在景观上连接成更加紧密的整体,根据景观和空间需要(例如:街角的景色、适当遮挡和分隔等)在适当的位置点缀乔木和灌木,营造自由开放的景观氛围的同时也更节约工程成本。
食堂南侧的大广场和场地西北侧的绿地是校园内两个重要的开放空间:一个是校园生活的室外“舞台”,另一个是师生的休闲“花园”。广场是作为师生们每日常聚的食堂公共空间的室外延申,既满足瞬间(饭点)的集中大量人流的进出,也是节日和校园活动的重要开敞空间,因此被设计成一片平坦的带有流线感草坪的广场,活泼又简洁。通过细致的竖向设计和铺装设计,从广场进入食堂的两个主要入口(南侧和东侧)都没有设置台阶,而是通过找坡使得人们能平滑流畅的进入食堂,也对残障人士更加友好和便利。所有进入宿舍和马术馆的主要入口区域都有这个细节的景观设计,从而在细节设计上也充分体现自由、开放、流畅的校园景观。西北侧的绿地,是一片相对安静又绿色的景观花园,大草坪通常都是校园的一景,平坦的草坪上点缀着大树,是师生日常工作学习之余散步休闲的区域。设计上也充分考虑花园视觉上的开放性和公共性,既保证安全性也服务于偶尔的节庆活动。
项目图纸
△基地总平面图
△总平面图
△地下一层平面图
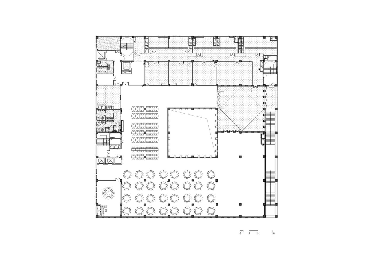
△一层平面图
△二层平面图
△三层平面图
△四层平面图
△屋顶平面图
△立面图
△立面图
△立面图
△立面图
△剖面图
△剖面图
△分析图
项目信息
建筑师:超城建筑
面积:88281m²
项目年份:2024
摄影师:金伟琦
主创建筑师:车飞、章雪峰
设计团队:赵世广、穆高杰、揭以彤、孙潇、陈海凤、陈逾、张耀文、黄明润
施工图设计单位:同圆设计集团股份有限公司
海绵城市专项设计:北京北建大建筑设计研究院有限公司
委托方:烟台城市科技职业学院
地点:烟台

BIM建筑网











































