新教育体系的实行
位于杭州市的中国美术学院(国美)良渚校区一期工程一标段于2022年完成,二标段工程亦于2023年8月结束,总建筑面积达18万平方米。目前整个校园已全面投入使用。在良渚校区设计竞赛初始,国美要求参赛的各建筑师团队提出符合社会经济发展的新型教育体系。非常建筑的教育体系,包括以下若干的关键点,业已付诸实行:1. 手脑并用的教学法,2. 建筑学设为通识课,3. 以研究为主导的高年级课程,4. 兴趣社的设立,5. 取消“系”的设置,6. 与校园规划关系最直接的居学一体构想。
校区单体建筑的设计与使用
在居学成为校园空间组织的指导思路的同时,“开放”构成建筑设计意图的另一条主线。我们将开放定义为:1. 空间在物理层面上的开放,2. 空间内容的可变性,3. 使用者,包括校方及师生,参与对空间使用的再设计。
工坊
开放、绵延的工坊,由一系列拱券组成,意味着鼓励师生走出自己相对私密的环境,更多地进入公共领域。现在,除了日常的学习、研究、创作,设计评图是在工坊里经常举行的活动之一;根据规模的情况,班级的评图通常横向地使用工坊,跨班或跨年级的评图则更可能是纵向的。其它已在发生的活动还有展览,会议,电影,戏剧/舞蹈演出,大型装置的搭建,乃至羽毛球、军训等。工坊里也出现了食堂、咖啡馆和小卖部等设施。
学舍
由于学舍在工坊的上方,学生可以在几分钟之内从寝室下到工坊。这种空间关系也带来了学生作息时间的改变,他们只需8点15分起床便能赶上8点半的第一节课。为了方便学生吃早餐,在工坊门外的廊下还设有早餐摊位。在学舍内部,每隔一层就有宽阔、二层通高的共享空间,打破了常规双边走廊的局限性,便于学生一起学习讨论或休息娱乐;也有建议让学生们将来自己设计、搭建该空间里的家具。
图书馆
图书馆内的空间组织是垂直的,即由9座塔楼构成;其中8座用作学习和研究,每一座塔内可以容纳包括几个子课题的大型研究项目或若干个独立的学习小组;第九座塔是一个所谓的“探索器”,本质上是一个纯建筑空间,是师生们放空冥想的去处。在学舍的屋顶上也有一系列探索器,校方计划一一激活开放。
展览馆
展览馆内存在着两种类型的空间:首层的开放大尺度空间和上层的线性的小尺度空间,以适应不同展览和活动的需要。
报告厅
作为一个封闭的阶梯式报告厅,报告厅本身的使用方法是特定的。但门厅仍然可以具备灵活性,如作举办展览、酒会之用。门厅的二层设有咖啡厅;即使报告厅里没有活动,咖啡厅也仍然营业。
体育馆
体育馆实质上是一个单一的大空间,为联排拱券屋顶覆盖。它的单纯性很容易转化为高度的适应性。目前,它即为平日各种体育项目训练比赛提供场地也是大型的会议、庆典、宴会等举行的所在。它的空间质量又与报告厅不同,体育馆的平地面是多功能的前提,并具备自然采光。
行政楼
行政楼的空间模型没有采用传统的办公模式,即双边走廊或开放平层,而是选择了剖面上空间感受丰富的错层单边走廊。行政办公对空间无特定要求,我们的设计考虑了将来该建筑做教学或研究等其它使用的可能性。
师生活动中心
这是良渚校园上唯一的独立于主校舍群而处于景观中的一个设施,功能的性质是休闲的,但没有更明确的定义,接近传统意义上的亭子或茶室。该建筑的结构形式采取混凝土折板体系,空间形态则是完全自由的。尽管它的规模很小,但完美地呈现出非常建筑在良渚校区设计中最主要的追求之一,即内容上开放、形式上自由的建筑空间。
内容与建筑的对话
在良渚,内容 – 国美师生的教学、研究、创作及日常、课外生活 – 与建筑的对话正在进行中。从工坊空间层出不穷的使用方式到室外环境中涌现出的丰富多彩的装置,从学生们在不同建筑局部的种种投影到国美95年校庆将图书馆整体地转化为影像的屏幕,都体现出艺术学人对建筑的理解和想象;作为回应,非常建筑的建筑师们也在工坊中设计了混淆二度与三度空间的平面窗框。我们相信使用者的参与会给建筑带来全新的启示。
项目图纸
△总平面图
△校区首层平面图
△校区二层平面图
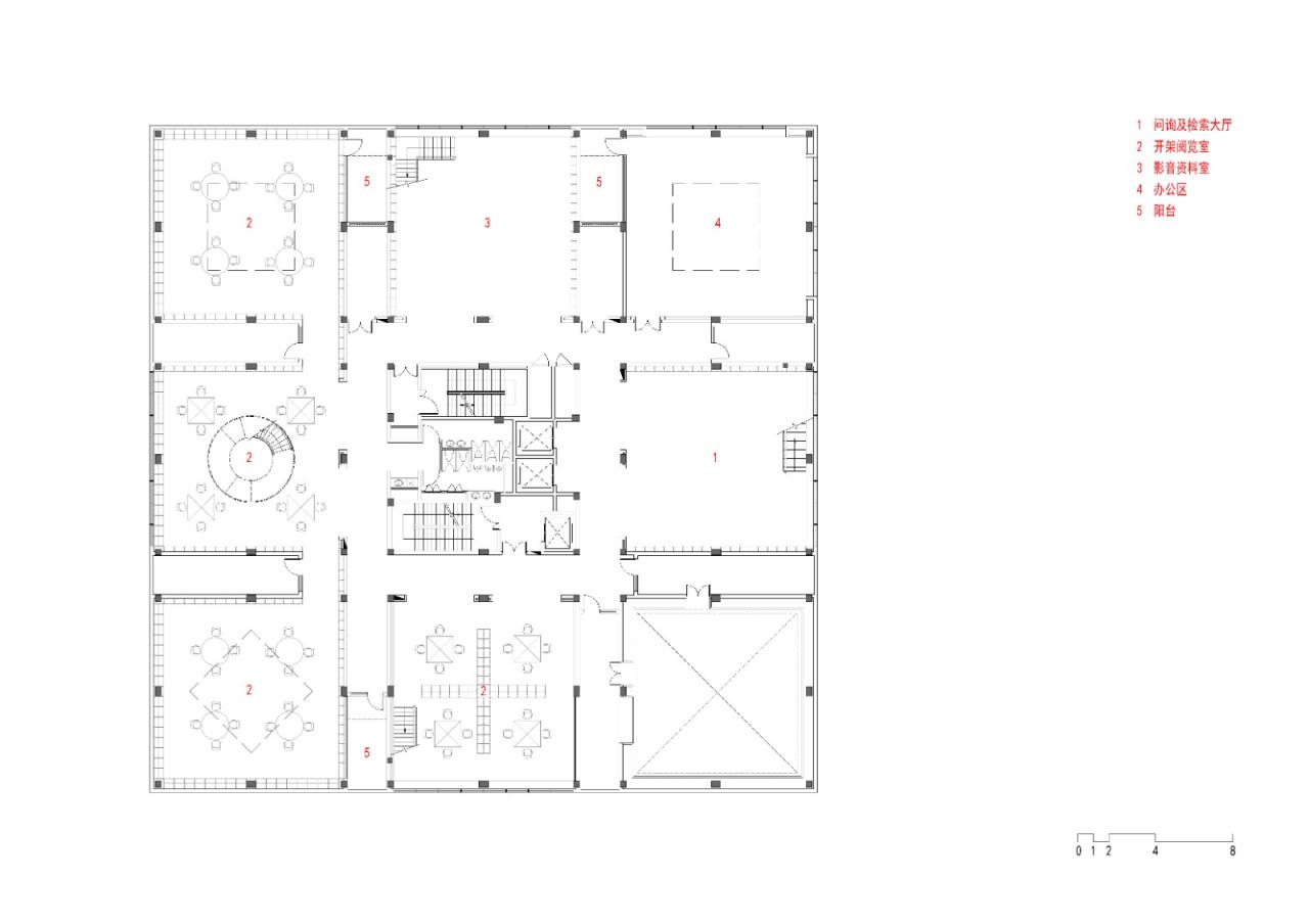
△图书馆一层平面图
△图书馆四层平面图
△图书馆九层平面图
△图书馆屋顶平面图
△图书馆剖面图
△展览馆一层平面图
△展览馆二层平面图
△展览馆三层平面图
△展览馆四层平面图
△展览馆剖面图
△报告厅地下一层平面图
△报告厅一层平面图
△报告厅二层平面图
△报告厅剖面图
△师生活动中心平面图
△师生活动中心剖面图
△3号工坊平面图
△3号工坊剖面图
项目信息
(一期Ⅱ段)
业主:中国美术学院
地址:中国,杭州良渚
主持建筑师:张永和、鲁力佳
项目团队:建筑:王文志(Ⅱ段)、尹舜(Ⅰ段)、王玥、龙彬、黄舒怡、梁小宁、刘扬、柳超、张博文、王硕、程艺石、何泽林、师琦、林诗洁、李相廷、谢岩旭、焦慧敏; 室内:王玥、张敏、韩书凯、李帅;景观:师琦、尹舜、林诗洁; 现场协调:李诗琪
施工图设计:同济大学建筑设计研究院(集团)有限公司 建筑设计三院
照明顾问:TJAD建筑照明所
建筑面积:180000 平方米
结构:钢筋混凝土结构
设计周期:2018.3-2019.6
竣工时间:2023 (一期Ⅱ段)
摄影:田方方、燕飞、李诗琪、张永和、王志磊

BIM建筑网









































































